| 地址 | 東京都江東區門前仲町1 | ||
| 價格 | 人民幣:2134萬 | 租金回報 | 預計4.50% |
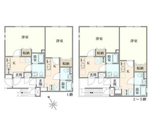
| 建筑年代 | 2020年8月 | 建筑結構 | 鋼筋混凝土造 |
| 實際面積 | 315.70㎡ | 土地面積 | 78.10㎡ |
| 陽臺面積 | 車庫面積 | ||
| 總戶數 | 10戶 | 所在層 | 1-5 |
| 房型 | 1室 | 朝向 | |
| 租賃情況 | 租金 | 約15,084,000日元/年/滿室 | |
| 管理費 | 修繕費 | ||
| 建蔽率 | 80%(100%) | 容積率 | 400% |
| 用途地域 | 商業地域 | 土地權利 | 永久產權 |
| 交通 | ◇東京メトロ東西線【門前仲町】站徒步2分鐘; ◇都營大江戶線【門前仲町】站徒步2分鐘 | ||
2020年8月新建的整棟投資公寓,永久產權,符合新抗震標準。位于東京都江東區,2條線路可以利用,距最近【門前仲町】站徒步均2分鐘,交通,生活便利性優越的地理位置,周邊距全家便利店徒步1分鐘,赤札堂超市徒步2分鐘,オオゼキ超市徒步5分鐘,銀行徒步2分鐘,郵局徒步5分鐘。物件是人氣的支持loT的公寓,配備了監視器,自動鎖,可撥號式郵箱,宅配快遞箱。鋼筋混凝土造5層,全10戶,1室,室內面積25.50㎡~27.36㎡不等,采光通風均良好,可視對講機及玄關雙重鎖,確保安全,全室標準設備、有很高收納力的鞋柜,索尼制loT對應多功能照明,IH廚具,空調,衛浴獨立,浴室烘干器,溫水洗凈馬桶,高速Wi-Fi,具有隔音效果的地板等,生活便利舒適。另外,物件可以申請日本銀行貸款,首付4-5成,貸款利率2.9%,貸款周期25年。撬動杠桿不但可以增加收益,還降低了投資風險!歡迎咨詢。
1. 地理與基本信息:江東區位于東京都東部,面朝東京灣,北鄰墨田區,東接江戶川區,南靠中央區,西毗港區。面積約40.16平方公里,2023年人口約52萬。近年來人口增長顯著,年輕家庭數量增多。這里曾是工業區,如今正推進居住環境改善和新商業區建設。
2. 主要區域及其特色
• 門前仲町(Monzen-Nakachō):富岡八幡宮是歷史悠久的神社,以深川八幡祭(深川祭)聞名。深川不動堂正式名稱為“永代寺”,因護摩祈愿而知名。
• 木場(Kiba):木場公園位于隅田川沿岸,面積廣闊,四季風景各異。木場廣場匯集了商業和公共設施。
• 清澄白河(Kiyosumi Shirakawa):清澄庭園是江戶時代留存的庭園,池塘中漂浮的石頭景色優美。藍瓶咖啡的日本1號店坐落于此,使其聲名遠揚。
• 豐洲(Toyosu):豐洲市場由筑地市場搬遷而來,可參觀游覽和品嘗美食。豐洲公園建于填海土地上,面積廣大,還有活動場地。
• 有明(Ariake):東京國際展示場是日本最大的國際展覽場地,舉辦過東京車展等活動。有明網球之森公園運動設施完備,適合網球、慢跑等運動。
• 臺場(Odaiba):部分區域屬于江東區,是極受歡迎的觀光地。臺場購物廣場是商業設施,標志性建筑是實物大小的高達立像。臺場海濱公園可悠閑欣賞彩虹大橋。
3. 文化與歷史:江東區在江戶時代被稱為“深川”,憑借水運和工業得以發展,至今仍保留著濃厚的歷史氣息。深川江戶資料館能讓人們體驗江戶時代的生活與文化。
4. 觀光景點:東京晴空塔橫跨墨田區,但從江東區前往也很方便。teamLab無界美術館曾位于臺場(目前在搬遷中)。船之科學館可進行與船相關的科學展示和模擬器體驗。
5. 交通出行:鐵路有東京地鐵有樂町線、半藏門線,都營地鐵大江戶線、新宿線、臨海線、百合海鷗號等。主要車站有門前仲町站、木場站、清澄白河站、豐洲站、有明站、臺場海濱公園站等。公交線路方便區內及前往鄰近區域的出行。
6. 生活環境:教育資源豐富,從幼兒園到高中教育設施齊全,還有東京海洋大學。醫療設施完備,有圣路加國際醫院、都立墨東醫院等。商業發達,有永旺、拉拉寶都豐洲等大型商業設施,日常生活便利。
7. 活動與節慶:深川祭每年8月舉行,是江戶三大祭之一。豐洲市場祭可感受市場的熱鬧氛圍。
8. 現代的江東區:江東區再開發活躍,豐洲和有明正在建設新的辦公樓和住宅。受奧運會影響,體育設施和公共設施不斷完善,生活環境得到提升。
總結:江東區面朝東京灣,歷史與新開發區域并存。對游客來說,臺場和豐洲市場頗具吸引力;對當地居民而言,這里居住環境舒適。交通便利,商業設施和公園完備,是生活品質較高的區域。如果您想了解特定區域或觀光景點的更多信息,歡迎告知。
您會在一個工作日內得到置業顧問的聯絡




