| 地址 | 東京都世田谷區太子堂 | ||
| 價格 | 人民幣:4442萬 | 租金回報 | 3.80%(預計) |
| 建筑年代 | 預計2020年7月 | 建筑結構 | 鋼筋混凝土造 |
| 實際面積 | 473.13㎡ | 土地面積 | 139.46㎡ |
| 陽臺面積 | 車庫面積 | ||
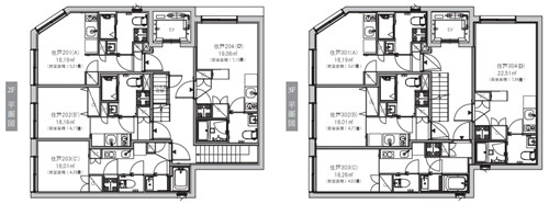
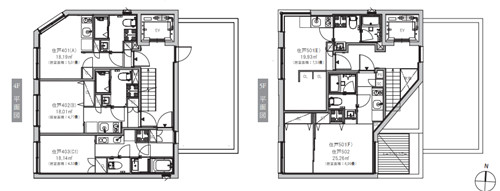
| 總戶數 | 全16戶 | 所在層 | |
| 房型 | 1室×13戶 1室1廳×1戶 店鋪×2戶 | 朝向 | |
| 租賃情況 | 租金 | 約25,584,000日元/年 | |
| 管理費 | 修繕費 | ||
| 建蔽率 | 80% (90%) | 容積率 | 300% |
| 用途地域 | 近鄰商業地域 | 土地權利 | 永久產權 |
| 交通 | 東急田園都市線.東急世田谷線三軒茶屋站徒步7分鐘; 東急世田谷線西太子堂站徒步8分鐘 | ||
公寓預計2020年7月建成,永久產權,符合新抗震標準。位于東京都世田谷區,2線2站可以利用,距最近車站三軒茶屋站徒步7分鐘,車站周邊商業設施齊全,住在這里可以迅速接觸到澀谷的便利,頗受人們的好評,至澀谷站直通4分鐘,大手町站直通22分鐘,新宿站11分鐘,六本木13分鐘,品川站16分鐘, 自由が丘站14分鐘,交通便利。公寓外觀簡潔大方,全住戶14戶,面積18.01㎡-25.26㎡不等(其中1戶是長屋面積53.37㎡),店鋪2戶,面積51.88㎡/37.72㎡。室內大型窗戶的設置使房間的采光性和通風性均良好,生活配套設施齊全,年租金約25,584,000日元,表面回報率3.80%,地理位置優越,另外,物件可以申請日本銀行貸款,首付4-5成,貸款利率2.9%,貸款周期25年。撬動杠桿不但可以增加收益,還降低了投資風險!
1. 地理與基本信息:世田谷區地處東京都西南部,北鄰澀谷區,東接目黑區,南靠大田區,西毗調布市和狛江市。面積約58.05平方公里,2023年人口約93萬,是東京都內人口最多的區。這里廣闊的自然環境與城市功能和諧共存,既方便前往市中心,又擁有豐富的自然資源,極具吸引力。
2. 主要區域及其特色
• 二子玉川(Futako-Tamagawa):二子玉川RISE是融合了高層建筑和購物中心的新地標。多摩川河畔綠樹成蔭,是騎行和野餐的絕佳場所。
• 下北澤(Shimokitazawa):作為年輕人文化的發源地,這里有許多個性十足的咖啡館、精品店和劇場,Live House也很豐富。下北澤南口商店街布滿古著店和雜貨店,氛圍獨特。
• 成城(Seijō):以高級住宅區聞名,成城學園前站周邊匯聚了高級超市和精品店。成城學園是一所私立學校,其周邊也以文教地區著稱。
• 三軒茶屋(Sangenjaya):寧靜氛圍的商店街與新商業設施交錯分布,咖啡館文化盛行。胡蘿卜塔是地標性建筑,還設有觀景餐廳。
• 用賀(Yōga):馬術公園是可以享受馬術和騎馬的場所,綠意盎然,假日里人潮涌動。
• 玉川(Tamagawa):玉川高島屋是大型百貨公司,購物便利。玉川區民會館是開展文化活動的重要場所。
3. 文化與歷史:世田谷區歷史上曾是農村地區,明治以后逐漸走向城市化。世田谷區立鄉土資料館可以讓人們了解該區的歷史和文化。
4. 觀光景點:世田谷美術館是自然與藝術和諧相融的美術館,是美術愛好者不容錯過的地方。砧公園面積廣闊,還設有玫瑰園和美術館。等等力溪谷距離市中心較近,自然環境優美,適合散步和徒步旅行。
5. 交通出行:鐵路有小田急小田原線、東急田園都市線、東急世田谷線、東急大井町線等。主要車站有二子玉川站、下北澤站、成城學園前站、三軒茶屋站、用賀站等。區內出行乘坐巴士很方便,尤其是世田谷區的社區巴士“せたまる”被廣泛使用。
6. 生活環境:教育資源豐富,從幼兒園到大學的教育機構眾多,如慶應義塾大學、成城大學等。醫療設施完備,有世田谷區立綜合醫院、東京醫療中心等。商業方面,區內各處分布著商店街和大型商業設施,生活便利性高。
7. 活動與節慶:下北澤電影節主要展映獨立電影。世田谷手工制作展展示并銷售當地工匠和創作者的作品。
8. 現代的世田谷區:世田谷區作為住宅區備受歡迎,尤其受到有子女家庭的青睞。再開發不斷推進,新的住宅和商業設施逐漸增多,同時也保留了注重自然環境的區域。
總結:世田谷區在東京都內面積廣闊,生活品質高。自然與城市融合的環境,不僅交通便利,文化活動也豐富多彩。從下北澤這樣的年輕人文化發源地,到二子玉川這樣的新興商業區,充滿多樣性。如果您想了解特定區域或觀光景點的更多信息,歡迎告知。
您會在一個工作日內得到置業顧問的聯絡




