| 地址 | 東京都臺東區臺東1 | ||
| 價格 | 人民幣:613萬 | 租金回報 | |
| 建筑年代 | 2008年1月 | 建筑結構 | 鋼筋混凝土造 |
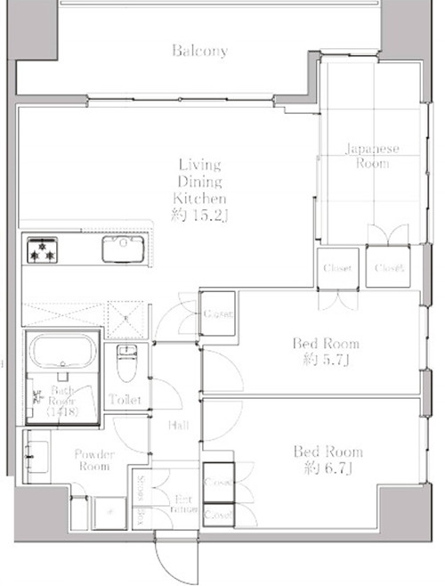
| 實際面積 | 70.73㎡ | 土地面積 | |
| 陽臺面積 | 13.08㎡ | 車庫面積 | |
| 總戶數 | 260戶 | 所在層 | 28層 |
| 房型 | 3室1廳 | 朝向 | |
| 租賃情況 | 居住中 | 租金 | |
| 管理費 | 19,100日元/月 | 修繕費 | 14,700日元/月 |
| 建蔽率 | 容積率 | ||
| 用途地域 | 土地權利 | 永久產權 | |
| 交通 | JR山手線秋葉原站徒步8分鐘; 東京メトロ日比谷線秋葉原站徒步7分鐘; JR中央.總武緩行線淺草橋站徒步9分鐘 | ||
2008年1月建成的高級公寓,永久產權,采用制震構造,符合新抗震標準。位于東京都臺東區,交通便利,3線2站可以利用,距最近車站秋葉原站徒步7分鐘。乘車距上野站直通3分鐘,公寓周邊距超市徒步1分鐘,全家便利店徒步3分鐘,三井紀念醫院徒步1分鐘,和泉公園徒步4分鐘,平成小學校徒步9分鐘,御徒町臺東中學校徒步13分鐘,生活購物非常便利。公寓住戶間采用耐火遮音壁,遮音性強,配有快遞箱,臨時物品存放處,3重鎖,24小時防犯措施,24小時專人管理(夜間有警備員),24小時可扔垃圾,非常便利,有客房,娛樂室,圖書室等。目前居住中,歡迎咨詢。另外,物件可以申請日本銀行貸款,首付4-5成,貸款利率2.9%,貸款周期25年。撬動杠桿不但可以增加收益,還降低了投資風險!
1. 地理與基本信息:臺東區位于東京都東部,隔隅田川與墨田區相鄰,北接荒川區,西與文京區、千代田區、中央區接壤。面積約10.08平方公里,2023年人口約20萬。因是著名觀光地,游客眾多。臺東區以“淺草”“上野”等區域聞名,是東京歷史最悠久的地區之一。
2. 主要區域及其特色
• 淺草(Asakusa):淺草寺正式名為“金龍山淺草寺”,是東京最古老的寺院,雷門、五重塔、仲見世通聞名。仲見世通是通往淺草寺的參道,滿是特產、傳統和菓子及小吃攤。每年夏天的隅田川花火大會熱鬧非凡,吸引大量游客。東京晴空塔是臺東區的標志,也是熱門觀光景點。
• 上野(Ueno):上野恩賜公園是東京都內最大的公園,匯集了美術館、博物館、動物園等。上野動物園是日本最古老的動物園;東京國立博物館擁有世界知名的日本美術藏品;國立科學博物館的科學和自然史展示豐富。阿美橫?。ēⅴ釞M)由戰后黑市發展而來,年末年初尤其熱鬧。不忍池位于公園內,櫻花季風景絕美。
• 谷中(Yanaka):保留著江戶時代風貌,是寧靜的住宅區。谷中靈園是歷史悠久的墓碑地和賞櫻名所。谷中銀座是充滿當地生活氣息的小商店街。
• 根岸(Negishi):留存著舊時街景,散布著歷史悠久的商店和餐飲店。由根岸賽馬場舊址發展而來的“東京賽馬場”,每年舉辦天皇賞(秋)賽事。
• 日本堤(Nihon-zutsumi):沿隅田川堤防的區域,春季是賞櫻勝地。
3. 文化與歷史:臺東區歷史可追溯至江戶時代,是江戶文化的發源地之一。這里有許多傳統節日,如淺草的三社祭、上野的山王祭等,充滿地域活力。落語、歌舞伎等傳統表演藝術也很盛行。
4. 觀光景點:臺東區觀光景點密集,有眾多不容錯過的看點,這里被稱為“下町”,保留著濃厚的東京平民生活文化,能感受到當地人的熱情。
5. 交通出行:鐵路有JR山手線(上野站)、東京地鐵(銀座線、日比谷線、千代田線)、都營地鐵(淺草線)等,上野站還是東北新干線、上越新干線的始發站,是交通樞紐。公交線路覆蓋全區,主要車站有上野站、淺草站、田原町站等。
6. 生活環境:教育資源豐富,歷史悠久的學校和新的教育設施平衡分布。醫療設施完備,有大學醫院等。商業發達,淺草、上野、阿美橫等地,購物和餐飲選擇多樣。
7. 活動與節慶:每年夏天的淺草桑巴狂歡節,能欣賞到類似巴西狂歡節的華麗游行。上野的熊貓節是為慶祝上野動物園的熊貓而舉辦的活動。隅田川花火大會在7月最后一個星期六舉行,沿隅田川燃放煙花。
8. 現代的臺東區:近年來,為提升作為觀光地的魅力,臺東區推進了再開發和觀光振興措施。面向年輕人的咖啡館、畫廊、藝術空間不斷增加,傳統與現代融合的城市建設正在進行。
總結:臺東區充滿歷史文化氣息,對游客來說有眾多必去景點。對當地居民而言,這里兼具下町的溫暖和生活的便利。傳統節日和活動豐富,四季皆有獨特風情。若您想了解特定觀光景點或區域的更多信息,歡迎告知。
您會在一個工作日內得到置業顧問的聯絡




