| 地址 | 東京都新宿區下落合4 | ||
| 價格 | 人民幣:920萬 | 租金回報 | 6.00%(預計) |
| 建筑年代 | 預計2020年2月竣工 | 建筑結構 | 木造 |
| 實際面積 | 202.51㎡ | 土地面積 | 137.02㎡ |
| 陽臺面積 | 車庫面積 | ||
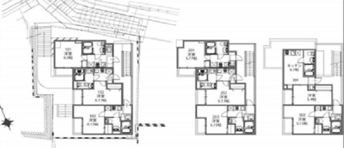
| 總戶數 | 8戶 | 所在層 | 1-3 |
| 房型 | 1室 | 朝向 | |
| 租賃情況 | 租金 | 約8,520,000日元/年 | |
| 管理費 | 修繕費 | ||
| 建蔽率 | 60% | 容積率 | 160% |
| 用途地域 | 第1種低層住居專用地域 | 土地權利 | 永久產權 |
| 交通 | 西武新宿線下落合站徒步6分鐘; JR山手線高田馬場站徒步10分鐘 | ||
預計2020年2月竣工的整棟投資公寓,永久產權,符合新抗震標準。位于東京都新宿區,有著得天獨厚的優越地理位置。2線2站可以利用,距下落合站徒步6分鐘,高田馬場站徒步10分鐘,交通便利。高田馬場站前餐飲店整體物美價廉,并這里聚集大量的院校,是日本著名的學生街,人流量大自然租賃需求量也大,非常適合投資。公寓配有防犯監視器,Wi-Fi設備,可是對講機,室內衛浴分離,洗凈功能馬桶,現代化廚具,2口煤氣爐,獨立洗面臺,空調,室內洗衣機放置處等配套設施,生活便利。滿室出租情況年租金約8,520,000日元,表面回報率6.00%,另外,物件可以申請日本銀行貸款,首付4-5成,貸款利率2.9%,貸款周期25年。撬動杠桿不但可以增加收益,還降低了投資風險!歡迎咨詢。
新宿區(Shinjuku-ku, 新宿區)是日本東京都23區之一,位于東京西部的特別區。新宿不僅是日本屈指可數的商業、商務、娛樂中心,還是世界頂級的交通樞紐。以下為您介紹新宿區的特點和概況:
1. 地理與基本信息:新宿區位于東京都中央偏西,以神田川為界與澀谷區相鄰,北接豐島區,東鄰文京區,南連澀谷區與目黑區,西毗中野區。面積約18.22平方公里,2023年人口約34萬。新宿站周邊人口密度極高,白天通勤者和游客眾多,熱鬧非凡。新宿區是集商業、行政、觀光、居住功能于一體的多功能區域。
2. 主要區域及其特色
• 新宿站周邊:新宿站客流量日本第一,JR線、私鐵、地鐵等眾多線路交匯,是龐大的綜合交通樞紐。西口是高樓林立的商務區,有新宿NS大樓、新宿野村大樓等;東口分布著巴士總站和百貨公司,如京王百貨、小田急百貨等;南口有歌舞伎町和黃金街,是著名的夜間繁華區;北口在都廳前,有東京都廳和新宿中央公園。
• 歌舞伎町(Kabukichō):以夜生活聞名,酒吧、俱樂部、卡拉OK酒吧、愛情酒店等密集。常盤松園是漫畫家的搖籃,有手冢治蟲、赤冢不二夫等的銅像。黃金街小酒吧密集,各有獨特氛圍和主題。
• 新宿御苑(Shinjuku Gyoen):堪稱都心的世外桃源,是大型公園,可欣賞法式、英式、日式三種風格的園林,也是著名的賞櫻勝地。
• 四谷(Yotsuya):有許多歷史悠久的神社和寺院,也是寧靜的住宅區,因四谷怪談而聞名的四谷三丁目就在這里。赤坂見附靠近政治和商業中心,臨近國會議事堂和首相官邸。
• 大久保(ōkubo):以“韓國城”著稱,可體驗韓國飲食文化和娛樂。
• 新宿區役所周邊:是新宿區的行政中心,有區役所和新宿區立圖書館等。
3. 文化與歷史:新宿自江戶時代就已存在,最初作為宿場町發展,明治以后隨著鐵路發展,逐漸成長為商業重地。新宿區立新宿歷史博物館可了解新宿的歷史文化。
4. 觀光景點:東京都廳的展望臺可免費俯瞰東京全景;新宿御苑四季風景優美,是都市中的寧靜之所;新宿三丁目方便購物和用餐;伊勢丹新宿店是高級百貨公司,能體驗時尚和美容的前沿潮流。
5. 交通出行:新宿站匯聚JR線、JR東日本、小田急電鐵、京王電鐵、東京地鐵、西武鐵道、都營地鐵等眾多線路;新宿巴士總站是發往全國各地高速巴士的集散地;主要車站有新宿站、四谷站、新宿三丁目站等。
6. 生活環境:教育資源豐富,從幼兒園到大學一應俱全,早稻田大學部分校區位于此地;醫療設施完備,有慶應義塾大學醫院、東京女子醫科大學醫院等大型醫院;商業發達,新宿站周邊是購物天堂,百貨公司、專賣店、購物中心應有盡有。
7. 活動與節慶:春季新宿御苑賞櫻時人潮涌動;每年秋季舉辦的新宿區民祭是當地居民廣泛參與的大型活動。
8. 現代的新宿區:新宿不斷發展變化,再開發項目持續推進,新的高樓和商業設施不斷涌現。國際化程度也日益提升,是不同國籍人群往來頻繁的全球化區域。
總結:新宿區在商業、觀光、文化、生活等各方面都充滿活力。同時,像歌舞伎町這樣的娛樂區域,無論晝夜都熱鬧非凡。從歷史古跡到現代地標,新宿看點豐富,能為訪客帶來多樣的體驗。如果您想了解特定區域或觀光景點的更多信息,歡迎告知。
您會在一個工作日內得到置業顧問的聯絡




