| 地址 | 東京都練馬區田柄1 | ||
| 價格 | 人民幣:394萬 | 租金回報 | |
| 建筑年代 | 預計2021年3月竣工 | 建筑結構 | 木造 |
| 實際面積 | 83.13㎡ | 土地面積 | 80.12㎡ |
| 陽臺面積 | 車庫面積 | ||
| 總戶數 | 販賣戶數2棟 | 所在層 | 1-2 |
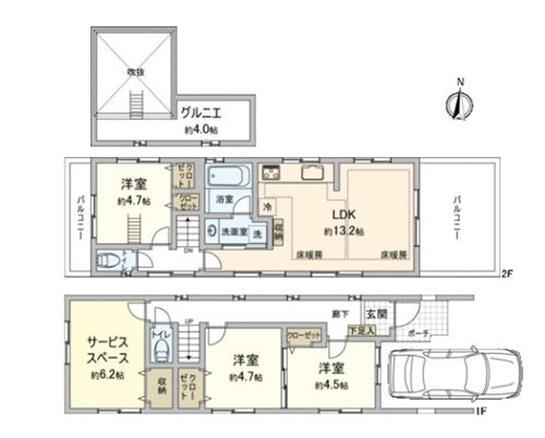
| 房型 | 4室1廳 | 朝向 | |
| 租賃情況 | 租金 | ||
| 管理費 | 修繕費 | ||
| 建蔽率 | 50 % | 容積率 | 100 % |
| 用途地域 | 第一種低層住居專用地域 | 土地權利 | 永久產權 |
| 交通 | ①東京メトロ有樂町線.副都心線【地下鉄赤塚】站徒步12分鐘 ②東京メトロ有樂町線.副都心線【平和臺】站徒步13分鐘 ③東武東上線【下赤塚】站徒步14分鐘 | ||
預計2021年3月竣工新建戶建,永久產權,符合新抗震標準。位于東京都練馬區,3線3站可以利用,距最近【地下鉄赤塚】站徒步12分鐘。周邊生活購物設施完善,距超市徒步1分鐘,全家便利店徒步3分鐘,郵局徒步7分鐘,銀行徒步2分鐘,公園徒步1分鐘,小學校徒步8分鐘,中學校徒步6分鐘,幼稚園徒步7分鐘,保育園徒步3分鐘。物件寬敞舒適的2層建筑,前面公道約6m,有車庫,4室1廳,附帶大型陽臺,生活配套設施齊全,全房間配有收納。另外,物件可以申請日本銀行貸款,首付4-5成,貸款利率1.5%~,貸款周期25年。撬動杠桿不但可以增加收益,還降低了投資風險!歡迎咨詢。
1. 地理與基本信息:練馬區地處東京都西北部,北鄰板橋區,東接豐島區,南靠中野區,西毗杉并區。面積約48.08平方公里,2023年人口約73萬,區內有許多寧靜的住宅區,深受有子女家庭的喜愛。這里動漫制作公司眾多,被認定為“練馬動漫基地”。
2. 主要區域及其特色
• 練馬站周邊:練馬站是西武池袋線和東京地鐵有樂町線的站點,是區中心地帶。練馬區役所提供各類行政服務。
• 光丘(Hikarigaoka):光丘公園面積廣闊,兒童游樂場和運動設施完備。光丘IMA是大型購物中心,日常生活用品一應俱全。
• 上石神井(Kami-Igusa):上石神井公園自然環境優美,也是賞櫻勝地。練馬區立美術館展示當地藝術作品。
• 江古田(Egodaa):早稻田大學部分校區在此,學生街熱鬧非凡。江古田之森雖規模較小,但能讓人感受自然氣息。
• 大泉學園(ōizumi Gakuen):作為動漫圣地,擁有瘋房子(Madhouse)和東映動畫等工作室。大泉學園櫸樹通商店街深受當地居民喜愛。
3. 文化與歷史:練馬區在江戶時代是農村地區,明治以后逐漸城市化。練馬區立鄉土博物館可以讓人們了解該區的歷史和文化。
4. 觀光景點:練馬區立動漫美術館可讓參觀者了解動漫歷史和制作過程。大泉櫻花公園是賞櫻名地,春季吸引眾多游客前來賞櫻。石神井公園是東京都內屈指可數的自然公園,池塘和森林景色優美。
5. 交通出行:鐵路有西武池袋線、西武新宿線、東京地鐵有樂町線、副都心線、都營大江戶線等。主要車站有練馬站、光丘站、上石神井站、江古田站、大泉學園站等。區內出行乘坐巴士很方便,還有社區巴士“ぷらっとわん”運行。
6. 生活環境:教育資源豐富,從幼兒園到高中的教育機構齊全,早稻田大學和東京學藝大學的校區也在區內。醫療設施完備,有練馬光丘醫院、博慈會紀念綜合醫院等。商業方面,各區域分布著商店街和大型商業設施,生活便利性高。
7. 活動與節慶:練馬區民節每年舉辦,是當地居民相聚的大型活動。大泉學園動漫街祭是慶祝動漫文化的節日。
8. 現代的練馬區:練馬區是動漫產業的中心地,也確立了作為新文化發源地的地位。自然環境優越,公園和綠地眾多,是適合養育子女的區域。
總結:練馬區在東京都內是動漫文化扎根深厚的區域,也是歷史與自然和諧相融的生活區域。作為住宅區備受歡迎,前往市中心交通也很便利。無論是動漫愛好者還是家庭,練馬區都是一個充滿魅力的地方。如果您想了解特定區域或觀光景點的更多信息,歡迎告知。
- 購物
- 教育
- 生活
- 交通
百貨店
超市
便利店
您會在一個工作日內得到置業顧問的聯絡




