| 地址 | 東京都荒川區南千住6 | ||
| 價格 | 人民幣:311萬 | 租金回報 | / |
| 建筑年代 | 1992年10月 | 建筑結構 | 鐵骨鋼筋混凝土造 |
| 實際面積 | 81.72㎡ | 土地面積 | / |
| 陽臺面積 | 13.38㎡ | 車庫面積 | / |
| 總戶數 | 214戶(總666戶) | 所在層 | 11層 |
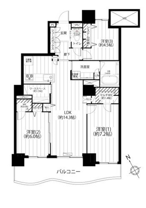
| 房型 | 3室1廳+WS | 朝向 | / |
| 租賃情況 | 空室 | 租金 | / |
| 管理費 | 13,200日元/月 | 修繕費 | 22,630日元/月 |
| 建蔽率 | / | 容積率 | / |
| 用途地域 | / | 土地權利 | 永久產權 |
| 交通 | ①東京メトロ日比谷線【南千住】站徒步14分鐘 ②常磐線【南千住】站徒步13分鐘 | ||
公寓1992年10月建成,永久產權,符合新抗震標準。位于東京都荒川區南千住,2條線路可以利用,距最近常磐線【南千住】站徒步13分鐘。公寓配有門禁門,全年有專人管理,用地內有停車場,有洗車地方,有住戶專用運動俱樂部,包括健身房,游泳池,網球場等。物件位于11層,晴天可以從陽臺看到富士山和天空樹,2021年3月完成室內裝修,3室1廳,有適合在家工作的工作空間,廚房收納柜,2個可步入式衣帽間,浴室換氣烘干器及加熱功能浴缸,跨度約8m長的陽臺。我們協助海外投資客戶申請日本銀行貸款購房業務,需要在日本設立公司,以法人名義購買,貸款額度約60-70%、還款周期25-35年、貸款利率1.5%起。歡迎咨詢。
1. 地理與基本信息:荒川區地處東京都東北部,北鄰足立區,東接葛飾區,南靠臺東區,西與北區和墨田區接壤。面積約10.16平方公里,2023年人口約21萬,下町的氛圍濃厚。這里商店街繁榮,有著支撐當地居民生活的社區。
2. 主要區域及其特色
• 尾久(Oku):尾久站有JR京濱東北線經過,周邊是住宅區。尾久原公園自然環境優美,是當地居民休閑的好去處。
• 西日暮里(Nishi-Nippori):西日暮里站是京濱東北線、山手線、東京地鐵千代田線、京成本線的交匯點,是交通樞紐。飛鳥山公園一部分位于荒川區,是著名的賞櫻勝地。
• 三河島(Mikasadai):三河島站有JR常磐線經過,周邊是寧靜的住宅區。三河島公園兒童游樂場和運動設施完備。
• 町屋(Machiiya):町屋站是京成本線和東京地鐵千代田線的交匯點,商店街活躍。町屋銀座商店街深受當地居民喜愛,充滿活力。
• 南千住(Minami-Senju):南千住站有筑波快線和東京地鐵日比谷線經過,是正在進行再開發的區域。南千住二丁目商店街商業設施眾多,購物便利。
3. 文化與歷史:荒川區自江戶時代就已存在,尤其是作為宿場町發展起來。荒川區立荒川故鄉文化館可以讓人們了解該區的歷史和文化。
4. 觀光景點:飛鳥山公園部分位于荒川區,春天櫻花盛開,景色美麗。荒川自然公園自然環境豐富,可欣賞四季不同的風景。日暮里-舍人線是新型交通系統,改善了區內的交通狀況。
5. 交通出行:鐵路有JR京濱東北線、山手線、常磐線、東京地鐵千代田線、日比谷線、京成本線、筑波快線等。主要車站有尾久站、西日暮里站、三河島站、町屋站、南千住站等。區內有方便出行的公交線路。
6. 生活環境:教育資源豐富,從幼兒園到高中的教育機構齊全,有東京電機大學、東京成德大學等高校。醫療設施完備,有荒川區立醫院、東京北醫療中心等。商業方面,各區域都有商店街和超市,生活便利性高。
7. 活動與節慶:荒川區民節是當地居民參與的大型活動。町屋祭是以商店街為中心,充滿地域活力的節日。
8. 現代的荒川區:荒川區在珍視下町風情的同時,通過再開發增加了新的商業設施和住宅。自然環境優越,公園和綠地眾多,被認為是宜居區域。
總結:荒川區是下町的溫馨氛圍與新開發區域共存的地方,充滿生活氣息。這里交通便利,商業設施和教育機構完備,無論是居住還是觀光都很適宜。尤其是南千住和西日暮里發展迅速,居住著從年輕人到老年人的各年齡段人群。如果您想了解特定區域或觀光景點的更多信息,歡迎告知。
您會在一個工作日內得到置業顧問的聯絡




