| 地址 | 大阪府大阪市生野區桃谷4丁目 | ||
| 價格 | 人民幣:173萬 | 租金回報 | / |
| 建筑年代 | 簽約后7個月 | 建筑結構 | 木造 |
| 實際面積 | 95.4㎡ | 土地面積 | 56.69㎡ |
| 陽臺面積 | / | 車庫面積 | / |
| 總戶數 | / | 所在層 | / |
| 房型 | 3室1廳 | 朝向 | / |
| 租賃情況 | / | 租金 | / |
| 管理費 | / | 修繕費 | / |
| 建蔽率 | 80% | 容積率 | 240% |
| 用途地域 | 第一種住居 | 土地權利 | 永久產權 |
| 交通 | ①地下鐵千日前線【鶴橋】站徒步18分鐘 ②JR大阪環狀線【桃谷】站徒步13分鐘 ③近鐵奈良線【鶴橋】站徒步15分鐘 | ||
林 武振 営業部
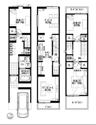
簽約7個月后交付的1戶建,永久產權,符合新抗震標準。生野區是大阪市的24區之一,位于大阪市東部,西側為大阪環狀線,北側為近鐵大阪線;區內總人口約在13萬,其中登記的外國人達2.7萬,其中外國人的國籍主要包括韓國、朝鮮、中國、越南,是大阪市內外國人最多的一區,外國人的比例占該區總人口的20%以上。本物件有駐車場,3室1廳,全室木質地板,懸空樓梯設計,吧臺式廚房,實用個性,可觀的收納空間,衛浴獨立等,整體設計提升了生活的精致度,
大阪 生野區
地址:大阪府大阪市生野區桃谷4丁目
交通:①地下鐵千日前線【鶴橋】站徒步18分鐘
②JR大阪環狀線【桃谷】站徒步13分鐘
③近鐵奈良線【鶴橋】站徒步15分鐘
您會在一個工作日內得到置業顧問的聯絡




