| 地址 | 日本千葉縣千葉市中央區松波1 | ||
| 價格 | 人民幣:338萬 | 租金回報 | / |
| 建筑年代 | 2021年1月 | 建筑結構 | 輕量鐵骨造 |
| 實際面積 | 89.00㎡ | 土地面積 | 107.12㎡ |
| 陽臺面積 | / | 車庫面積 | / |
| 總戶數 | / | 所在層 | 1-2 |
| 房型 | 3室1廳+S+P | 朝向 | / |
| 租賃情況 | / | 租金 | / |
| 管理費 | / | 修繕費 | / |
| 建蔽率 | 60% | 容積率 | 200% |
| 用途地域 | 第一種住居地域 | 土地權利 | 永久產權 |
| 交通 | 總武.中央緩行線【千葉】站徒步9分鐘 | ||
林 武振 営業部
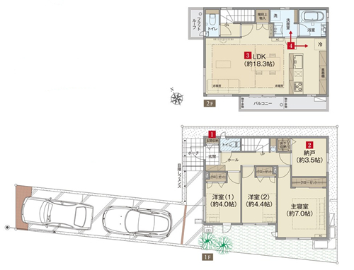
2021年1月建成,永久產權,符合新抗震標準。位于日本千葉縣千葉市,距總武.中央緩行線【千葉】站徒步9分鐘,利用JR總武快線至東京站38分鐘。周邊PERIE購物商業設施700m,SOGO百貨店980m,松本清藥妝店及超市380m,千葉公園450m。物件前面道路6m以上,輕量鐵骨造2層,有車位,3室1廳,南面陽臺,可以將園藝工具和孩子的玩具等收納整潔的玄關,與走廊相連接的納戶可以收納行李等大容量的收納空間,寬敞的客餐廳有地暖,對面式廚房,附帶洗碗機及凈水器一體型水龍頭,盥洗室和浴室都在廚房的旁邊,各房間有壁櫥,兩層各有衛生間等生活配套設施齊全。海外客戶可以申請日本銀行貸款購房,目前有兩種方式:1.需要在日本設立公司,以法人名義購買,貸款額度約60-70%、還款周期25-35年、貸款利率1.5%起。2.個人名義購買,海外客戶可以申請日本個人抵押貸款購房,不需要設立公司,貸款額度約50-60%,還款周期15-25年,貸款年齡65歲以內,貸款額度不能低于2000萬日元,貸款利率2.7%起。詳情歡迎咨詢。
千葉 千葉市
地址:日本千葉縣千葉市中央區松波1
交通:總武.中央緩行線【千葉】站徒步9分鐘
您會在一個工作日內得到置業顧問的聯絡




