| 地址 | 日本千葉縣流山市平和臺2 | ||
| 價格 | 人民幣:290萬 | 租金回報 | / |
| 建筑年代 | 2021年4月 | 建筑結構 | 木造 |
| 實際面積 | 112.88㎡ | 土地面積 | 136.96㎡ |
| 陽臺面積 | / | 車庫面積 | / |
| 總戶數 | / | 所在層 | 1-2 |
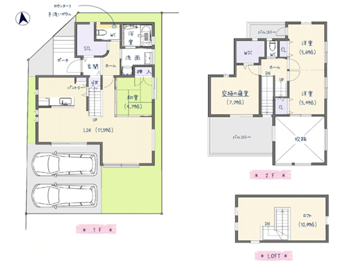
| 房型 | 4室1廳+LOFT+P | 朝向 | / |
| 租賃情況 | / | 租金 | / |
| 管理費 | / | 修繕費 | / |
| 建蔽率 | 60% | 容積率 | 200% |
| 用途地域 | 第一種住居地域 | 土地權利 | 永久產權 |
| 交通 | ①TX線【流山セントラルパーク】站徒步15分鐘 ②流山電鐵線【平和臺】站徒步6分鐘 | ||
営業部
2021年4月建成,永久產權,符合新抗震標準。位于日本千葉縣流山市,2線2站可以利用,距最近【平和臺】站徒步6分鐘,距【流山セントラルパーク】站徒步15分鐘。附近超市徒步10分鐘內,流山小學校徒步6分鐘,南部中學校徒步20分鐘。物件面前有公園,木造2層,4室1廳,有2臺車車位,室內吹拔設計,大量使用天然素材,光腳觸感也很好的木質地板,可以調節濕度的硅藻土的墻壁,附帶有樓梯和窗戶的閣樓,拿取東西很方便,鞋柜收納不光鞋子,孩子的玩具,嬰兒車等也可以收納,2F西式房間門和壁櫥都有兩個,將來也可以根據需求作為兩個房間使用,客餐廳配備耗電少,壽命長LED照明,附帶洗碗機對面式廚房,衛浴獨立,兩層都有衛生間,充實的生活配套設備。詳情歡迎咨詢。
千葉 流山市
地址:日本千葉縣流山市平和臺2
交通:①TX線【流山セントラルパーク】站徒步15分鐘
②流山電鐵線【平和臺】站徒步6分鐘
您會在一個工作日內得到置業顧問的聯絡




