| 地址 | 東京都足立區舍人2 | ||
| 價格 | 人民幣:154萬 | 租金回報 | / |
| 建筑年代 | 2006年9月 | 建筑結構 | 鐵骨鋼筋混凝土造 |
| 實際面積 | 59.67㎡ | 土地面積 | / |
| 陽臺面積 | 7.40㎡ | 車庫面積 | / |
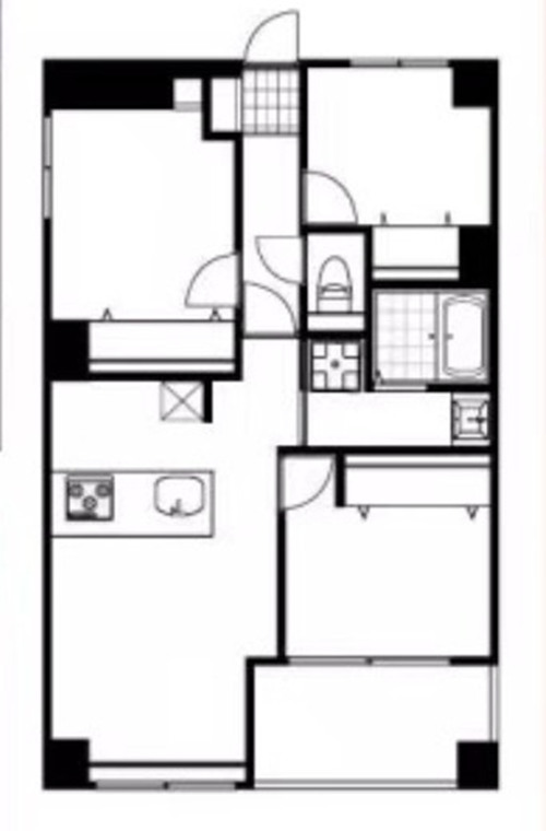
| 總戶數 | 23戶 | 所在層 | 3層 |
| 房型 | 3室1廳 | 朝向 | / |
| 租賃情況 | / | 租金 | / |
| 管理費 | 15,500日元/月 | 修繕費 | 19,500日元/月 |
| 建蔽率 | / | 容積率 | / |
| 用途地域 | / | 土地權利 | 永久產權 |
| 交通 | 日暮里舍人ライナー【舍人】站徒步6分鐘 | ||
2006年9月建成的10層公寓,永久產權,符合新抗震標準。位于東京都足立區,距日暮里舍人ライナー【舍人】站徒步6分鐘。公寓從車站沿著大路一直走,很容易辨認的位置,附近有超市,便利店,郵局和餐飲店,生活便利性很高的位置,保育園,學校,有游樂設施的舍人公園都很近,育兒環境也很好。公寓配置快遞箱,可飼養寵物,物件位于3層,3室1廳,完成室內裝修,包括更新地板,壁紙,衛浴設備,系統廚具,浴室烘干器等,玄關新設收納,各居室有壁櫥,衛浴分離。詳情歡迎咨詢。
1. 地理與基本信息:足立區地處東京都東北部,北鄰川口市,東接葛飾區,南靠荒川區,西毗北區。面積約53.25平方公里,在東京都23區中相對較大。2023年人口約70萬,居住著不同年齡段的人群,人口數量較多。這里自然環境優越,公園眾多,作為住宅區也頗受歡迎。
2. 主要區域及其特色
• 北千住(Kita-Senju):北千住站有JR常磐線、東京地鐵千代田線、日比谷線、東武伊勢崎線(東武晴空塔線)經過,是交通樞紐。商業區內有眾多百貨公司和商店街,購物和用餐都很方便。
• 竹之塚(Takenotsuka):竹之塚站有筑波快線經過,周邊新建了許多住宅區。竹之塚中央商店街深受當地居民喜愛,能買到各種生活必需品。
• 綾瀨(Ayase):綾瀨站有千代田線和筑波快線經過,是著名的住宅街區。綾瀨川自然環境優美,是散步的絕佳去處。
• 梅島(Umejima):梅島站有日暮里-舍人線經過,方便區內出行。梅島銀座商店街是支撐當地居民生活的街道。
• 舍人(Toneri):舍人公園面積廣闊,秋季的紅葉景色很美。舍人線是區內運行的新型交通系統,提升了交通便利性。
3. 文化與歷史:足立區自江戶時代就已存在,是從農村地區逐漸發展為城市化的區域。足立區立鄉土博物館可以讓人們了解該區的歷史和文化。
4. 觀光景點:足立區是賞花勝地,特別是“足立區立花與森林交流公園”,以玫瑰和櫻花聞名。見沼代親水公園自然環境豐富,四季景色各異。千住宿能讓人感受到昔日江戶五街道之一日光街道的宿場町風情。
5. 交通出行:鐵路有JR常磐線、東京地鐵千代田線、日比谷線、東武伊勢崎線、筑波快線、日暮里-舍人線等。主要車站有北千住站、竹之塚站、綾瀨站、梅島站、舍人站等。區內公交線路眾多,出行便利。
6. 生活環境:教育資源豐富,從幼兒園到高中的教育機構齊全,東京電機大學、帝京平成大學等高校的校區也位于此地。醫療設施完備,有足立區立醫院、東京北醫療中心等。商業方面,以北千住為中心,商業設施完備,超市和商店街遍布各地。
7. 活動與節慶:足立區民節是當地居民參與的大型活動。北千住七夕祭每年舉辦,商店街會裝飾七夕飾品,熱鬧非凡。
8. 現代的足立區:足立區在尊重自然環境的同時推進城市開發,打造了宜居的環境。隨著再開發的進行,新的住宅和商業設施不斷增加,有望提升區域活力。
總結:足立區是自然與城市功能平衡的區域,公園和綠地眾多,深受有子女家庭的喜愛。北千住交通便利,生活設施齊全。這里還有歷史遺跡,對游客來說也有很多看點。如果您想了解特定區域或觀光景點的更多信息,歡迎告知。
您會在一個工作日內得到置業顧問的聯絡




