| 地址 | 東京都品川區東五反田1 | ||
| 價格 | 人民幣:329萬 | 租金回報 | / |
| 建筑年代 | 1998年9月 | 建筑結構 | 鐵骨鋼筋混凝土造 |
| 實際面積 | 51.16㎡ | 土地面積 | / |
| 陽臺面積 | 6.45㎡ | 車庫面積 | / |
| 總戶數 | 29戶 | 所在層 | 9層 |
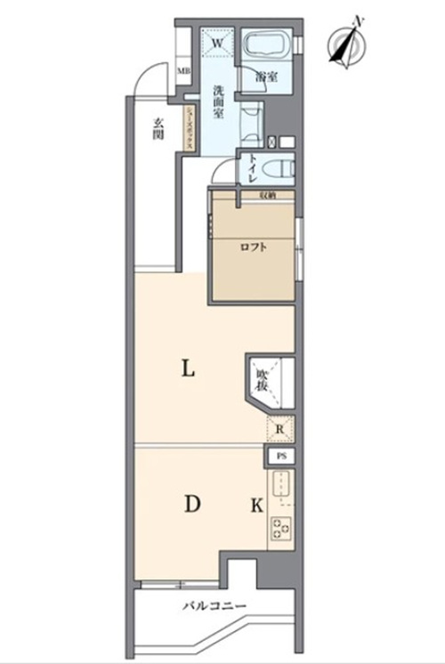
| 房型 | 1室+LOFT | 朝向 | 東南 |
| 租賃情況 | / | 租金 | / |
| 管理費 | 15,900日元/月 | 修繕費 | 9,210日元/月 |
| 建蔽率 | / | 容積率 | / |
| 用途地域 | 商業地域.第一種中高層住居專用地域 | 土地權利 | 永久產權 |
| 交通 | ①JR山手線【五反田】站徒步6分鐘 ②都營淺草線【高輪臺】站徒步4分鐘 | ||
1998年9月建成,永久產權,符合新抗震標準。位于東京都品川區東五反田1丁目,距JR山手線【五反田】站徒步6分鐘,都營淺草線【高輪臺】站徒步4分鐘。周邊有超市,便利店,商業設施,公寓鐵骨鋼筋混凝土造11層,2010年實施大規模修繕,設置門禁,快遞箱,24小時可以扔垃圾,1層3戶,物件位于9層,東南角住戶,陽光充足,51.16㎡寬敞的單間,也可以變更為1室1廳(費用相談),有閣樓部分,完成室內裝修,更新生活配套設備,包括不銹鋼廚具,壁紙,地板,衛浴設備等,浴室有通風窗,詳情歡迎咨詢。海外客戶可以申請日本銀行貸款購房,目前有兩種方式:1.需要在日本設立公司,以法人名義購買,貸款額度約60-70%、還款周期25-35年、貸款利率1.5%起。2.個人名義購買,海外客戶可以申請日本個人抵押貸款購房,不需要設立公司,貸款額度約50-60%,還款周期15-25年,貸款年齡65歲以內,貸款額度不能低于2000萬日元,貸款利率2.7%起。
1. 地理與基本信息:品川區地處東京都南部,北鄰港區,東接大田區,南與大田區和川崎市接壤,西毗目黑區。面積約22.84平方公里,2023年人口約40萬,商業區屬性明顯,白天人口會有所增加。品川站周邊的再開發以及新商業設施的開業,讓這里作為商業區備受關注。
2. 主要區域及其特色
• 品川站周邊:品川站是東海道新干線、京濱東北線、山手線、橫須賀線、臨海線、京急本線、東京單軌電車等多條線路交匯的交通樞紐。品川Intercity是辦公大樓與商業設施一體化的綜合建筑。品川Season Terrace是集購物、餐廳、酒店于一體的區域。
• 五反田(Gotanda):是商業區,眾多企業在此設有辦公室。五反田站有JR山手線、東急池上線、都營淺草線經過。
• 大崎(ōsaki):Gate City大崎是購物、餐飲、辦公場所聚集的綜合設施。大崎New City是大規模的辦公樓群,再開發形成了新的街景。
• 北品川(Kita-Shinagawa):天王洲Isle是藝術和文化的發源地,有許多由倉庫改造而成的畫廊和咖啡館。天王洲運河邊可欣賞美麗的運河風景。
• 荏原(Ebara):分布著寧靜的住宅區,還有一些商店街和公園。
• 大井町(ōimachi):大井町站有京急本線、東急大井町線經過,商業設施完備。大井賽馬場在周末時熱鬧非凡。
3. 文化與歷史:品川自江戶時代起作為宿場町發展,是重要的交通樞紐。品川神社歷史悠久,深受當地居民喜愛。
4. 觀光景點:品川水族館位于天王洲Isle,是受歡迎的都市型水族館。寺田倉庫有許多現代藝術畫廊和活動場地。品川區民公園可讓人享受自然和運動。
5. 交通出行:品川區是東京主要鐵路網匯聚的地方,尤其是品川站,有多條線路經過。主要車站有品川站、五反田站、大崎站、北品川站、大井町站等。區內公交線路完善,出行便利。
6. 生活環境:教育資源豐富,從幼兒園到高中的教育機構齊全,有慶應義塾大學、日本女子大學等。醫療設施完備,有昭和大學醫院、東京醫療中心等大型醫院。商業方面,品川站周邊、五反田、大井町等地有許多便利的購物和餐飲設施。
7. 活動與節慶:品川區民節每年舉辦,是當地居民參與的大型活動。天王洲運河節可欣賞藝術和音樂表演。
8. 現代的品川區:品川區再開發持續推進,新的辦公樓和商業設施不斷涌現。國際化色彩濃厚,尤其是品川站周邊,商務人士和游客往來頻繁。
總結:品川區在商業、交通、觀光、生活等各方面不斷發展。既有深厚的歷史背景,又在進行象征現代東京的再開發。無論是居住還是觀光都極具吸引力,交通便利是其一大優勢。如果您想了解特定區域或觀光景點的更多信息,歡迎告知。
您會在一個工作日內得到置業顧問的聯絡




