| 地址 | 東京都中野區大和町2 | ||
| 價格 | 人民幣:1415萬 | 租金回報 | 4.06% |
| 建筑年代 | 2008年3月 | 建筑結構 | 鋼筋混凝土造 |
| 實際面積 | 332.64㎡ | 土地面積 | 241.54㎡ |
| 陽臺面積 | / | 車庫面積 | / |
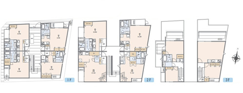
| 總戶數 | 8戶 | 所在層 | 1-3 |
| 房型 | 1室×6 躍層2室1廳×2 | 朝向 | / |
| 租賃情況 | 目前出租中 | 租金 | 約11,508,000日元/年 |
| 管理費 | / | 修繕費 | / |
| 建蔽率 | 70% | 容積率 | 150% |
| 用途地域 | 第一種低層住居專用地域 | 土地權利 | 永久產權 |
| 交通 | ①西武新宿線【野方】站徒步8分鐘 ②JR總武中央線【高円寺】站徒步17分鐘 | ||
2008年3月建成,永久產權,符合新抗震標準。位于東京都中野區大和町2丁目,2線2站可以利用,距【野方】站徒步8分鐘,【高円寺】站徒步17分鐘,半小時內可通往新宿,澀谷,池袋。周邊有數家超市和便利店,日常購物不用擔心,公寓鋼筋混凝土造3層,全8戶小規模住宅,共用部時尚的玻璃百葉窗設計,設有自行車存放處,1室戶型6 戶,躍層2室1廳2戶(帶屋頂陽臺),各戶29.15㎡~71.51㎡,室內統一的白色內部裝飾展現出清潔感,充實的生活配套設備,包括IH廚具,獨立盥洗室,室內洗衣機放置處等,詳情歡迎咨詢。海外客戶可以申請日本銀行貸款購房,目前有兩種方式:1.需要在日本設立公司,以法人名義購買,貸款額度約60-70%、還款周期25-35年、貸款利率1.5%起。2.個人名義購買,海外客戶可以申請日本個人抵押貸款購房,不需要設立公司,貸款額度約50-60%,還款周期15-25年,貸款年齡65歲以內,貸款額度不能低于2000萬日元,貸款利率2.7%起。
1. 地理與基本信息:中野區位于東京都西北部,北鄰豐島區,東接新宿區,南靠澀谷區,西毗杉并區。面積約15.59平方公里,2023年人口約34萬,是學生、年輕人和有子女家庭的聚居地。這里是亞文化的中心,商業和文化發展蓬勃。
2. 主要區域及其特色
• 中野站周邊:中野站有JR中央線和東京地鐵東西線經過,是交通樞紐。中野百老匯是動漫和御宅文化的圣地,由公寓改造而成,匯聚了眾多專賣店。中野太陽購物中心商店街深受當地居民喜愛,各類店鋪林立。
• 野方(Nogata):野方站有都營地鐵大江戶線通過,周邊是寧靜的住宅區。野方通是商店街,日常生活用品一應俱全。
• 桃園(Momozono):是寧靜的住宅區,以綠樹成蔭的桃園川沿岸為特色。
• 新井(Arai):新井藥師寺供奉著藥師如來,是人們的信仰寄托,新年參拜時會有很多人前來。
3. 文化與歷史:中野區自江戶時代起發展,明治之后逐漸走向城市化。中野區立歷史民俗資料館可以讓人們了解該區的歷史和文化。
4. 觀光景點:中野百老匯有許多售賣動漫周邊、手辦和唱片的專賣店,是愛好者的必去之地。中野四季之森公園自然環境優美,可欣賞四季不同的風景。新井藥師寺在節分和新年參拜期間熱鬧非凡。
5. 交通出行:鐵路有JR中央線、東京地鐵東西線、都營地鐵大江戶線等。主要車站有中野站、野方站、東中野站、落合南長崎站等。區內有方便出行的公交線路。
6. 生活環境:教育資源豐富,從幼兒園到高中的教育機構齊全,早稻田大學部分校區也在此。醫療設施完備,有中野區立醫院、東京女子醫科大學附屬青山醫院等。商業方面,中野站周邊和各商店街能滿足生活所需。
7. 活動與節慶:中野區民節是當地居民相聚的大型活動。新井藥師節分會會舉行撒豆子等活動,熱鬧非凡。
8. 現代的中野區:中野區作為亞文化的發源地聲名遠揚,頻繁舉辦動漫、音樂、電影等活動。再開發正在進行,新的商業設施和住宅不斷涌現,區域活力持續提升。
總結:中野區是充滿文化藝術氣息的區域,中野百老匯更是亞文化的圣地。這里交通便利,生活環境優越,無論是居住還是游覽都極具吸引力。同時,歷史遺跡和自然景觀兼備,為人們提供了平衡的生活方式。如果您想了解特定區域或觀光景點的更多信息,歡迎告知。
您會在一個工作日內得到置業顧問的聯絡




