| 地址 | 東京都大田區仲六郷1 | ||
| 價格 | 人民幣:1155萬 | 租金回報 | 4.7% |
| 建筑年代 | 2022年3月 | 建筑結構 | 鋼筋混凝土造 |
| 實際面積 | 233.0㎡ | 土地面積 | / |
| 陽臺面積 | / | 車庫面積 | / |
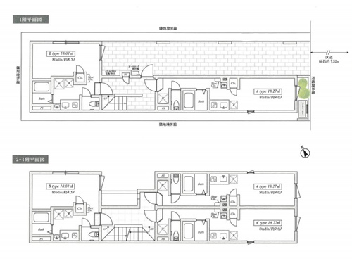
| 總戶數 | 11戶 | 所在層 | 1-4 |
| 房型 | 1室 | 朝向 | / |
| 租賃情況 | 目前出租中 | 租金 | 約9,263,855日元/年 |
| 管理費 | / | 修繕費 | / |
| 建蔽率 | 80% | 容積率 | 300% |
| 用途地域 | 近鄰商業地域 | 土地權利 | 永久產權 |
| 交通 | ①京急本線【雑色】站徒步8分鐘 ②JR京濱東北線【蒲田】站徒步11分鐘 | ||
2022年3月建成,永久產權,符合新抗震標準。位于東京都大田區仲六郷1丁目,2線2站可以利用,距京急本線【雑色】站徒步8分鐘,JR京濱東北線【蒲田】站徒步11分鐘,利用雑色站去品川站9分鐘,橫濱站12分鐘,利用蒲田站到東京站20分鐘,交通便利,并且蒲田車站有開發新線路及與車站相關設施修改的計劃。公寓鋼筋混凝土造4層,周邊徒步范圍內商業設施,超市,便利店,郵局等,設置門禁及可視對講機,入口有快遞箱,全11戶,面向單身者的1室戶型,廚具,衛浴設備,收納,室內洗衣機放置處等生活配套設備齊全,目前出租中,詳情歡迎咨詢。海外客戶可以申請日本銀行貸款購房,目前有兩種方式:1.需要在日本設立公司,以法人名義購買,貸款額度約60-70%、還款周期25-35年、貸款利率1.5%起。2.個人名義購買,海外客戶可以申請日本個人抵押貸款購房,不需要設立公司,貸款額度約50-60%,還款周期15-25年,貸款年齡65歲以內,貸款額度不能低于2000萬日元,貸款利率2.7%起。
1. 地理與基本信息:大田區地處東京都南部,北鄰品川區,東臨東京灣,南接川崎市,西與世田谷區和目黑區接壤。面積約60.73平方公里,2023年人口約73萬。這里工業區與住宅區交錯,人口結構多樣。因羽田機場的存在和發達的制造業,大田區也被譽為“制造之城”。
2. 主要區域及其特色
• 羽田(Haneda):羽田機場是國際和國內航線的主要機場,是進出該區的門戶。羽田機場國際線航站樓設施先進,還可購物和用餐。
• 蒲田(Kamata):蒲田站有JR京濱東北線、京急本線、東京單軌電車經過,商業區域繁華。蒲田站前商店街是充滿活力、供當地居民日常使用的街道。
• 大森(ōmori):大森站有JR京濱東北線、京急本線經過,商業設施和餐飲店眾多,生活便利。大森海岸位于工業區一角,是觀賞工廠夜景的好去處。
• 池上(Ikegami):池上本門寺是日蓮宗的大本山,信徒眾多,四萬六千日時會舉辦盛大法會。池上通商店街是支撐當地居民生活的街道。
• 田園調布(Den-en-chōfu):以高級住宅區聞名,環境靜謐且綠樹成蔭。多摩川可讓人們親近自然,還有完善的騎行道。
3. 文化與歷史:大田區曾是農村地區,明治后工業化進程加快,戰后隨著羽田機場的開設得到了巨大發展。大田區立鄉土資料館可以讓人們了解該區的歷史和文化。
4. 觀光景點:羽田機場展望臺可近距離觀看飛機起降。大田市場作為筑地市場的分場,是海鮮和食材的批發市場。大森故鄉海濱公園可讓人們感受自然與歷史。
5. 交通出行:鐵路有JR京濱東北線、京急本線、東急池上線、東京單軌電車等。主要車站有羽田機場站、蒲田站、大森站、池上站、田園調布站等。區內公交線路眾多,出行便利。
6. 生活環境:教育資源豐富,從幼兒園到高中的教育機構齊全,東京農業大學等高校也位于大田區內。醫療設施完備,有大田紀念醫院、東京醫療中心等。商業方面,各區域都有商店街和大型商業設施,生活便利性高。
7. 活動與節慶:池上本門寺四萬六千日是日蓮宗的盛大節日,眾多參拜者云集。大田區產業展是介紹當地制造業和中小企業產品的活動。
8. 現代的大田區:大田區作為工業區發揮著重要作用,近年來,隨著再開發的推進,新的商業設施和住宅不斷涌現。隨著羽田機場的擴建和新交通線路的開通,大田區有望迎來更大的發展。
總結:大田區是工業、商業和觀光相融合的獨特區域。羽田機場的存在對其影響深遠,使其成為重要的交通樞紐和“制造之城”。從寧靜的住宅區到繁華的商業區,大田區在生活的各個方面都展現出多樣性。如果您想了解特定區域或觀光景點的更多信息,歡迎告知。
您會在一個工作日內得到置業顧問的聯絡




