| 地址 | 東京都臺東區淺草橋3 | ||
| 價格 | 人民幣:3205萬 | 租金回報 | 4.20% |
| 建筑年代 | 預計2023年10月竣工 | 建筑結構 | 鋼筋混凝土造 |
| 實際面積 | 540.79㎡ | 土地面積 | 100.20㎡ |
| 陽臺面積 | / | 車庫面積 | / |
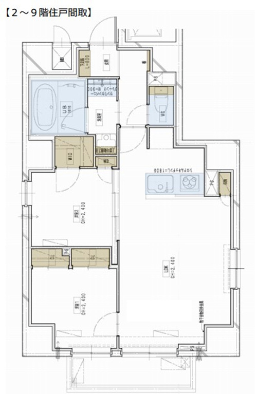
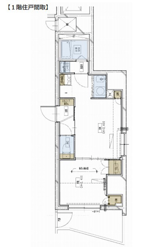
| 總戶數 | 9戶 | 所在層 | 1-9 |
| 房型 | 2室1廳×8 1室1廳×1(SOHO可) | 朝向 | / |
| 租賃情況 | 目前建筑中 | 租金 | 約26,932,800日元/年/滿室 |
| 管理費 | / | 修繕費 | / |
| 建蔽率 | 80% | 容積率 | 500% |
| 用途地域 | 商業地域 | 土地權利 | 永久產權 |
| 交通 | ①都營淺草線【淺草橋】站徒步6分鐘 ②都營淺草線【蔵前】站徒步6分鐘 ③JR總武線【淺草橋】站徒步7分鐘 | ||
預計2023年10月竣工的整棟投資公寓,永久產權,符合新抗震標準。位于東京都臺東區淺草橋3丁目,2線2站可利用,距最近【淺草橋】站.【蔵前】站均徒步6分鐘。公寓鋼筋混凝土造9層,商業地域,配置可視門禁,電梯,快遞箱,可飼養寵物(有寵物共用洗腳場等專用設施),全9戶,55.94㎡的2室1廳有8戶(有陽臺),1戶32.12㎡的1室1廳(有專用庭.SOHO可),一層一戶隱私性較好,室內廚具,衛浴設備等生活配套設施齊全,詳情歡迎咨詢。海外客戶可以申請日本銀行貸款購房,目前有兩種方式:1.需要在日本設立公司,以法人名義購買,貸款額度約60-70%、還款周期25-35年、貸款利率1.5%起。2.個人名義購買,海外客戶可以申請日本個人抵押貸款購房,不需要設立公司,貸款額度約50-60%,還款周期15-25年,貸款年齡65歲以內,貸款額度不能低于2000萬日元,貸款利率2.7%起。
1. 地理與基本信息:臺東區位于東京都東部,隔隅田川與墨田區相鄰,北接荒川區,西與文京區、千代田區、中央區接壤。面積約10.08平方公里,2023年人口約20萬。因是著名觀光地,游客眾多。臺東區以“淺草”“上野”等區域聞名,是東京歷史最悠久的地區之一。
2. 主要區域及其特色
• 淺草(Asakusa):淺草寺正式名為“金龍山淺草寺”,是東京最古老的寺院,雷門、五重塔、仲見世通聞名。仲見世通是通往淺草寺的參道,滿是特產、傳統和菓子及小吃攤。每年夏天的隅田川花火大會熱鬧非凡,吸引大量游客。東京晴空塔是臺東區的標志,也是熱門觀光景點。
• 上野(Ueno):上野恩賜公園是東京都內最大的公園,匯集了美術館、博物館、動物園等。上野動物園是日本最古老的動物園;東京國立博物館擁有世界知名的日本美術藏品;國立科學博物館的科學和自然史展示豐富。阿美橫丁(アメ橫)由戰后黑市發展而來,年末年初尤其熱鬧。不忍池位于公園內,櫻花季風景絕美。
• 谷中(Yanaka):保留著江戶時代風貌,是寧靜的住宅區。谷中靈園是歷史悠久的墓碑地和賞櫻名所。谷中銀座是充滿當地生活氣息的小商店街。
• 根岸(Negishi):留存著舊時街景,散布著歷史悠久的商店和餐飲店。由根岸賽馬場舊址發展而來的“東京賽馬場”,每年舉辦天皇賞(秋)賽事。
• 日本堤(Nihon-zutsumi):沿隅田川堤防的區域,春季是賞櫻勝地。
3. 文化與歷史:臺東區歷史可追溯至江戶時代,是江戶文化的發源地之一。這里有許多傳統節日,如淺草的三社祭、上野的山王祭等,充滿地域活力。落語、歌舞伎等傳統表演藝術也很盛行。
4. 觀光景點:臺東區觀光景點密集,有眾多不容錯過的看點,這里被稱為“下町”,保留著濃厚的東京平民生活文化,能感受到當地人的熱情。
5. 交通出行:鐵路有JR山手線(上野站)、東京地鐵(銀座線、日比谷線、千代田線)、都營地鐵(淺草線)等,上野站還是東北新干線、上越新干線的始發站,是交通樞紐。公交線路覆蓋全區,主要車站有上野站、淺草站、田原町站等。
6. 生活環境:教育資源豐富,歷史悠久的學校和新的教育設施平衡分布。醫療設施完備,有大學醫院等。商業發達,淺草、上野、阿美橫等地,購物和餐飲選擇多樣。
7. 活動與節慶:每年夏天的淺草桑巴狂歡節,能欣賞到類似巴西狂歡節的華麗游行。上野的熊貓節是為慶祝上野動物園的熊貓而舉辦的活動。隅田川花火大會在7月最后一個星期六舉行,沿隅田川燃放煙花。
8. 現代的臺東區:近年來,為提升作為觀光地的魅力,臺東區推進了再開發和觀光振興措施。面向年輕人的咖啡館、畫廊、藝術空間不斷增加,傳統與現代融合的城市建設正在進行。
總結:臺東區充滿歷史文化氣息,對游客來說有眾多必去景點。對當地居民而言,這里兼具下町的溫暖和生活的便利。傳統節日和活動豐富,四季皆有獨特風情。若您想了解特定觀光景點或區域的更多信息,歡迎告知。
您會在一個工作日內得到置業顧問的聯絡




