| 地址 | 東京都千代田區神田富士町16 | ||
| 價格 | 人民幣:152萬 | 租金回報 | / |
| 建筑年代 | 2011年3月 | 建筑結構 | 鐵骨鋼筋混凝土造 |
| 實際面積 | 33.00㎡ | 土地面積 | / |
| 陽臺面積 | 7.32㎡(各層) | 車庫面積 | / |
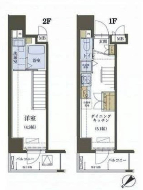
| 總戶數 | 35戶 | 所在層 | 10層 |
| 房型 | 復式 | 朝向 | / |
| 租賃情況 | / | 租金 | / |
| 管理費 | 8,350日元/月 | 修繕費 | 6,699日元/月 |
| 建蔽率 | / | 容積率 | / |
| 用途地域 | / | 土地權利 | 永久產權 |
| 交通 | ①JR山手線.京濱東北線.中央線【神田】站徒步4分鐘 ②東京メトロ銀座線【神田】站徒步4分鐘 ③都營新宿線【巖本町】站徒步4分鐘 ④JR總武線.東京メトロ日比谷線.つくばエクスプレス【秋葉原】站徒步6分鐘 | ||
2011年3月建成,永久產權,符合新抗震標準。位于東京都千代田區神田富士町,優越的都心位置,4站8線路可以利用,距【神田】站.【巖本町】站均徒步4分鐘,距【秋葉原】站徒步6分鐘,交通便捷,利用神田站15分鐘內分別可直通東京,日本橋,上野,銀座,新宿,池袋,品川等區域,另外約30分鐘可以通往羽田機場。公寓地上13層,周邊超市及便利店充實,生活購物方便,設置門禁,監視器,快遞箱等共用設施,24小時可以扔垃圾,物件位于10層,室內33.00㎡復式格局,各層均有陽臺,廚具,衛浴設備,空調等生活設施齊全,詳情歡迎咨詢。
1. 地理與基本信息:千代田區地處東京都中央,北鄰文京區、豐島區,東接臺東區、荒川區,南靠中央區、港區,西毗新宿區。面積約11.66平方公里,2023年人口約6萬。作為商業區,白天人口數量遠多于夜間。這里是日本政治和經濟的中心,皇居、國會議事堂等重要設施集中于此。
2. 主要區域及其特色
• 皇居周邊:皇居是日本天皇的居所,皇居東御苑和皇居外苑對公眾開放,是著名的觀光景點。丸之內林立著歷史悠久的辦公樓和商業設施,是商業中心。
• 大手町:大手町站有多條地鐵線路經過,發展成為辦公街區。大手町塔樓是高層大樓,入駐了許多金融和IT企業。
• 有樂町:有樂町站有JR山手線和東京地鐵有樂町線經過,商業設施完備。有樂町大樓內可購物和觀影。
• 秋葉原:秋葉原站是JR山手線、總武線、東京地鐵日比谷線、筑波快線的交匯點,以電器街聞名。電器街匯聚了大量動漫、游戲和電子產品的專賣店。
• 神田:神田站有JR中央線、京濱東北線、山手線等線路經過,也是學生街。神田古書店街是出版業的中心,有許多古書店。
• 二重橋前:東京站是日本的交通樞紐,新干線和眾多普通鐵路線在此始發和到達,分為丸之內側和八重洲側。
3. 文化與歷史:千代田區擁有自江戶時代以來的悠久歷史,皇居更是日本歷史和文化的象征。千代田區立日比谷圖書文化館是當地文化活動的重要場所。
4. 觀光景點:皇居的二重橋和東御苑深受游客喜愛。靖國神社是祭祀戰爭中陣亡者的神社。國會議事堂提供參觀活動,可了解日本政治中心的風貌。秋葉原作為動漫和電子產品的圣地,吸引著大量游客。
5. 交通出行:千代田區是東京主要鐵路網的匯聚地,東京站更是有多條線路經過。主要車站有東京站、有樂町站、秋葉原站、大手町站、神田站等。區內有方便出行和觀光的公交線路。
6. 生活環境:千代田區內中小學數量較少,常借助周邊區的學校資源。一橋大學的部分校區位于區內。醫療方面,附近有圣路加國際醫院、東京醫科大學醫院等大型醫療設施。商業上,丸之內、有樂町、秋葉原等地購物和餐飲選擇豐富。
7. 活動與節慶:神田祭是日本三大祭典之一,華麗的花車游行值得一看。秋葉原電器節是電器街特有的活動,熱鬧非凡。
8. 現代的千代田區:千代田區在保持商業區地位的同時,觀光吸引力也在不斷提升。高層大樓和再開發項目持續推進,丸之內和大手町區域的現代化進程加快。國際化色彩濃厚,吸引了大量外國游客和商務人士。
總結:千代田區是日本政治、經濟、文化的中心,涵蓋了從歷史遺跡到前沿商業區的多樣風貌。皇居和東京站周邊的美麗街景,以及秋葉原的活力氛圍等,看點豐富。這里無論是居住還是觀光都頗具魅力,但物價和房租相對較高。如果您想了解特定區域或觀光景點的更多信息,歡迎告知。
您會在一個工作日內得到置業顧問的聯絡




