| 地址 | 日本埼玉縣川口市柳崎5 | ||
| 價格 | 人民幣:1420萬 | 租金回報 | 7.52% |
| 建筑年代 | 1990年 | 建筑結構 | 鋼筋混凝土造 |
| 實際面積 | 743.37㎡ | 土地面積 | 415㎡ |
| 陽臺面積 | / | 車庫面積 | / |
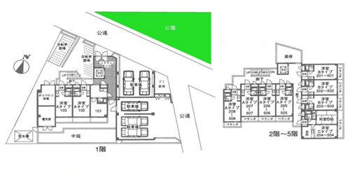
| 總戶數 | 35戶 | 所在層 | 1-5 |
| 房型 | 1室×31 2室×4 | 朝向 | / |
| 租賃情況 | 目前出租中 | 租金 | / |
| 管理費 | / | 修繕費 | / |
| 建蔽率 | 60 % | 容積率 | 200% |
| 用途地域 | 第二種中高層住居專用地域 | 土地權利 | 永久產權 |
| 交通 | JR武蔵野線【東浦和】站徒步10分鐘 | ||
柏 青 営業部
1990年建成,永久產權,符合新抗震標準。位于日本埼玉縣川口市,距JR武蔵野線【東浦和】站徒步10分鐘。公寓樓鋼筋混凝土造5層,角地,北側/東側分別約9.4m/6.0m公道,近鄰公園,2023年1月共用部實施了大規模修繕,有駐車場、自行車存放處,共35戶,以單間戶型為主,另外1戶2室,室內生活配套設備完善,目前出租中,詳情歡迎咨詢。海外客戶可以申請日本銀行貸款購房,目前有兩種方式:1.需要在日本設立公司,以法人名義購買,貸款額度約60-70%、還款周期25-35年、貸款利率1.5%起。2.個人名義購買,海外客戶可以申請日本個人抵押貸款購房,不需要設立公司,貸款額度約50-60%,還款周期15-25年,貸款年齡65歲以內,貸款額度不能低于2000萬日元,貸款利率2.7%起。
埼玉 川口市
地址:日本埼玉縣川口市柳崎5
交通:JR武蔵野線【東浦和】站徒步10分鐘
您會在一個工作日內得到置業顧問的聯絡




