| 地址 | 東京都江戶川區北小巖5 | ||
| 價格 | 人民幣:463萬 | 租金回報 | 6.9% |
| 建筑年代 | 2023年4月 | 建筑結構 | 木造 |
| 實際面積 | 152.04㎡ | 土地面積 | 86.91㎡ |
| 陽臺面積 | / | 車庫面積 | / |
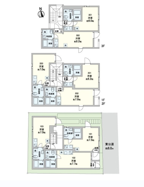
| 總戶數 | 8戶 | 所在層 | 1-3 |
| 房型 | 1室 | 朝向 | / |
| 租賃情況 | 目前部分出租中 | 租金 | 約6,156,000日元/年 |
| 管理費 | / | 修繕費 | / |
| 建蔽率 | 60% | 容積率 | 200% |
| 用途地域 | 第一種中高層住居專用地域 | 土地權利 | 永久產權 |
| 交通 | ①京成線【京成小巖】站徒步10分鐘 ②京成線【江戶川】站徒步8分鐘 | ||
2023年4月新建,永久產權,符合新抗震標準。位于東京都江戶川區北小巖5丁目,距京成線【江戶川】站徒步8分鐘,【京成小巖】站徒步10分鐘。公寓樓木造地上3層,東側約6m公道,設有快遞箱,共8戶,1室戶型(16.05㎡~17.65㎡),室內設置可視門鈴、廚具、空調、衛浴設備等充實生活設備,詳情歡迎咨詢。海外客戶可以申請日本銀行貸款購房,目前有兩種方式:1.需要在日本設立公司,以法人名義購買,貸款額度約60-70%、還款周期25-35年、貸款利率1.5%起。2.個人名義購買,海外客戶可以申請日本個人抵押貸款購房,不需要設立公司,貸款額度約50-60%,還款周期15-25年,貸款年齡65歲以內,貸款額度不能低于2000萬日元,貸款利率2.7%起。
1. 地理與基本信息:江戶川區地處東京都東部,北鄰葛飾區,西接墨田區、江東區,南瀕東京灣,東與千葉縣市川市和浦安市接壤。面積約49.90平方公里,2023年人口約70萬,是較大的區,有子女的家庭居多。區內江戶川和新川沿岸有眾多公園,自然環境優美。
2. 主要區域及其特色
• 小巖(Koiwa):小巖站有JR總武本線經過,已發展成為商業區。小巖銀座商店街深受當地居民喜愛,充滿活力。
• 船堀(Funabori):船堀站有都營地鐵新宿線經過,住宅和商業設施交錯分布。船堀綠色購物中心是大型商業設施,能滿足日常生活所需。
• 葛西(Kasai):葛西站有東京地鐵東西線經過,自然環境極具吸引力。葛西臨海公園面積廣闊,可進行自然觀察和休閑活動,其中的“葛西臨海水族園”尤其受歡迎。
• 一之江(Ichinoe):一之江站有都營地鐵新宿線經過,周邊是寧靜的住宅區。一之江公園是當地居民的休閑場所,兒童游樂設施完備。
• 瑞江(Mizue):瑞江站有東京地鐵東西線經過,有許多適合家庭居住的住宅。江戶川區立瑞江南公園綠樹成蔭,四季風景各異。
3. 文化與歷史:江戶川區自江戶時代就已存在,當時利用河流發展了交通和產業。江戶川區立江戶川區鄉土博物館可以讓人們了解該區的歷史和文化。
4. 觀光景點:葛西臨海公園是自然與游樂園相結合的地方,舉辦煙花大會時會吸引大量游客。東京迪士尼度假區雖不直接位于江戶川區,但靠近浦安市邊界,常作為觀光據點。江戶川河川敷是騎行和散步的絕佳場所。
5. 交通出行:鐵路有JR總武本線、東京地鐵東西線、都營地鐵新宿線等。主要車站有小巖站、船堀站、葛西站、一之江站、瑞江站等。區內出行乘坐巴士很方便,還有社區巴士“ぐるっとバス”運行。
6. 生活環境:教育資源豐富,從幼兒園到高中的教育機構齊全,尤其有許多適合家庭的學校。醫療設施完備,有江戶川醫院、東京女子醫科大學附屬青山醫院等。商業方面,各區域都有商店街和大型商業設施,生活便利性高。
7. 活動與節慶:江戶川區煙花大會每年夏天舉辦(也有停辦的年份),吸引眾多游客。江戶川區民節是當地居民參與的大型活動。
8. 現代的江戶川區:江戶川區自然環境優越,是深受有子女家庭喜愛的住宅區。再開發不斷推進,新的商業設施和住宅逐漸增多,同時自然環境也得到了重視。
總結:江戶川區是自然與城市和諧相融的區域,公園和綠地眾多,非常適合養育子女。生活便利性高,能感受到下町的溫馨氛圍和社區的凝聚力。此外,由于靠近東京迪士尼度假區,也具有觀光勝地的屬性。如果您想了解特定區域或觀光景點的更多信息,歡迎告知。
您會在一個工作日內得到置業顧問的聯絡




