| 地址 | 東京都新宿區 | ||
| 價格 | 人民幣:2774萬 | 租金回報 | 4.62% |
| 建筑年代 | 2006年5月 | 建筑結構 | 鋼筋混凝土造 |
| 實際面積 | 586.46㎡ | 土地面積 | 258.47㎡ |
| 陽臺面積 | / | 車庫面積 | / |
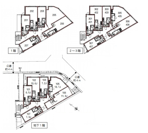
| 總戶數 | 24戶 | 所在層 | 3層付地下1層 |
| 房型 | 1室 | 朝向 | / |
| 租賃情況 | 目前滿室出租 | 租金 | 約26,759,124日元/年 |
| 管理費 | / | 修繕費 | / |
| 建蔽率 | 60% | 容積率 | 160% |
| 用途地域 | 第一種住居.第一種中高層 | 土地權利 | 永久產權 |
| 交通 | ①JR山手線.西武新宿線.東京メトロ東西線【高田馬場】站 ②JR中央.總武線【大久保】站 ③JR山手線【新大久保】站 | ||
2006年5月建成,永久產權,符合新抗震標準。位于東京都新宿區,JR山手線、西武新宿線等多條線路可以利用,近鄰【高田馬場】站、【大久保】站、【新大久保】站,可直通新宿站、池袋站、大手町站等。公寓樓鋼筋混凝土造3層付地下1層,角地,東側、東北側分別寬約4m道路,周邊散布著便利店、超市、藥妝店等日常購物設施,共用部設有門禁、自行車車位,總戶數24戶,1室戶型,室內生活配套設備齊全,目前滿室出租,詳情歡迎咨詢。海外客戶可以申請日本銀行貸款購房,目前有兩種方式:1.需要在日本設立公司,以法人名義購買,貸款額度約60-70%、還款周期25-35年、貸款利率1.5%起。2.個人名義購買,海外客戶可以申請日本個人抵押貸款購房,不需要設立公司,貸款額度約50-60%,還款周期15-25年,貸款年齡65歲以內,貸款額度不能低于2000萬日元,貸款利率2.7%起。
No.309
新宿區(Shinjuku-ku, 新宿區)是日本東京都23區之一,位于東京西部的特別區。新宿不僅是日本屈指可數的商業、商務、娛樂中心,還是世界頂級的交通樞紐。以下為您介紹新宿區的特點和概況:
1. 地理與基本信息:新宿區位于東京都中央偏西,以神田川為界與澀谷區相鄰,北接豐島區,東鄰文京區,南連澀谷區與目黑區,西毗中野區。面積約18.22平方公里,2023年人口約34萬。新宿站周邊人口密度極高,白天通勤者和游客眾多,熱鬧非凡。新宿區是集商業、行政、觀光、居住功能于一體的多功能區域。
2. 主要區域及其特色
• 新宿站周邊:新宿站客流量日本第一,JR線、私鐵、地鐵等眾多線路交匯,是龐大的綜合交通樞紐。西口是高樓林立的商務區,有新宿NS大樓、新宿野村大樓等;東口分布著巴士總站和百貨公司,如京王百貨、小田急百貨等;南口有歌舞伎町和黃金街,是著名的夜間繁華區;北口在都廳前,有東京都廳和新宿中央公園。
• 歌舞伎町(Kabukichō):以夜生活聞名,酒吧、俱樂部、卡拉OK酒吧、愛情酒店等密集。常盤松園是漫畫家的搖籃,有手冢治蟲、赤冢不二夫等的銅像。黃金街小酒吧密集,各有獨特氛圍和主題。
• 新宿御苑(Shinjuku Gyoen):堪稱都心的世外桃源,是大型公園,可欣賞法式、英式、日式三種風格的園林,也是著名的賞櫻勝地。
• 四谷(Yotsuya):有許多歷史悠久的神社和寺院,也是寧靜的住宅區,因四谷怪談而聞名的四谷三丁目就在這里。赤坂見附靠近政治和商業中心,臨近國會議事堂和首相官邸。
• 大久保(ōkubo):以“韓國城”著稱,可體驗韓國飲食文化和娛樂。
• 新宿區役所周邊:是新宿區的行政中心,有區役所和新宿區立圖書館等。
3. 文化與歷史:新宿自江戶時代就已存在,最初作為宿場町發展,明治以后隨著鐵路發展,逐漸成長為商業重地。新宿區立新宿歷史博物館可了解新宿的歷史文化。
4. 觀光景點:東京都廳的展望臺可免費俯瞰東京全景;新宿御苑四季風景優美,是都市中的寧靜之所;新宿三丁目方便購物和用餐;伊勢丹新宿店是高級百貨公司,能體驗時尚和美容的前沿潮流。
5. 交通出行:新宿站匯聚JR線、JR東日本、小田急電鐵、京王電鐵、東京地鐵、西武鐵道、都營地鐵等眾多線路;新宿巴士總站是發往全國各地高速巴士的集散地;主要車站有新宿站、四谷站、新宿三丁目站等。
6. 生活環境:教育資源豐富,從幼兒園到大學一應俱全,早稻田大學部分校區位于此地;醫療設施完備,有慶應義塾大學醫院、東京女子醫科大學醫院等大型醫院;商業發達,新宿站周邊是購物天堂,百貨公司、專賣店、購物中心應有盡有。
7. 活動與節慶:春季新宿御苑賞櫻時人潮涌動;每年秋季舉辦的新宿區民祭是當地居民廣泛參與的大型活動。
8. 現代的新宿區:新宿不斷發展變化,再開發項目持續推進,新的高樓和商業設施不斷涌現。國際化程度也日益提升,是不同國籍人群往來頻繁的全球化區域。
總結:新宿區在商業、觀光、文化、生活等各方面都充滿活力。同時,像歌舞伎町這樣的娛樂區域,無論晝夜都熱鬧非凡。從歷史古跡到現代地標,新宿看點豐富,能為訪客帶來多樣的體驗。如果您想了解特定區域或觀光景點的更多信息,歡迎告知。
您會在一個工作日內得到置業顧問的聯絡




