| 地址 | 日本神奈川縣川崎市 | ||
| 價格 | 人民幣:1002萬 | 租金回報 | 6.50% |
| 建筑年代 | 1989年3月 | 建筑結構 | 鋼筋混凝土造 |
| 實際面積 | 470.31㎡ | 土地面積 | 344.45㎡ |
| 陽臺面積 | / | 車庫面積 | / |
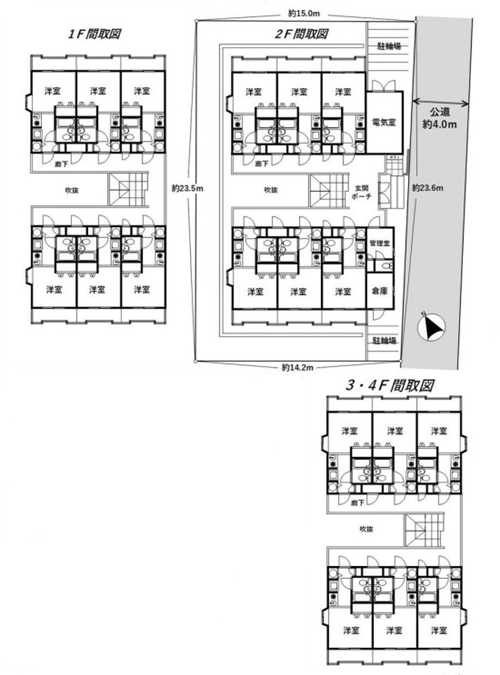
| 總戶數 | 24戶 | 所在層 | 1-4 |
| 房型 | 1室 | 朝向 | / |
| 租賃情況 | 目前出租中 | 租金 | 約13,576,800日元/年/滿室 |
| 管理費 | / | 修繕費 | / |
| 建蔽率 | 60% | 容積率 | 200% |
| 用途地域 | 第一種中高層住居專用地域 | 土地權利 | 永久產權 |
| 交通 | 小田急線【生田】站 | ||
林 武振 営業部
1989年3月建成,永久產權,符合新抗震標準。位于日本神奈川縣川崎市,近鄰小田急線【生田】站。公寓樓東南側寬約4.0m道路,鋼筋混凝土造4層,總戶數24戶,1室戶型,附近有超市、明治大學生田校區、專修大學生田校區。公寓樓2021年實施大規模修繕,包括外壁改修,共用部涂裝,新設門禁,快遞柜、設置監視器,交換照明等,2021年~2024年7月計21戶房間完成翻新,室內生活配套設備齊全,目前出租中,詳情歡迎咨詢。海外客戶可以申請日本銀行貸款購房,目前有兩種方式:1.需要在日本設立公司,以法人名義購買,貸款額度約60-70%、還款周期25-35年、貸款利率1.5%起。2.個人名義購買,海外客戶可以申請日本個人抵押貸款購房,不需要設立公司,貸款額度約50-60%,還款周期15-25年,貸款年齡65歲以內,貸款額度不能低于2000萬日元,貸款利率2.7%起。
No.334
神奈川縣 川崎市多摩區
地址:日本神奈川縣川崎市
交通:小田急線【生田】站
您會在一個工作日內得到置業顧問的聯絡




