| 地址 | 東京都足立區 | ||
| 價格 | 人民幣:1260萬 | 租金回報 | 5.51% |
| 建筑年代 | 2022年12月 | 建筑結構 | 鐵骨造 |
| 實際面積 | 478.6㎡ | 土地面積 | 163.66㎡ |
| 陽臺面積 | / | 車庫面積 | / |
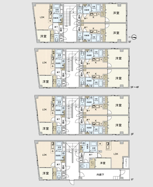
| 總戶數 | 14戶 | 所在層 | 1-5層 |
| 房型 | 1室、1室1廳 | 朝向 | / |
| 租賃情況 | 目前滿室出租 | 租金 | 約13,896,000日元/年 |
| 管理費 | / | 修繕費 | / |
| 建蔽率 | 80% | 容積率 | 300% |
| 用途地域 | 準工業地域 | 土地權利 | 永久產權 |
| 交通 | 東武伊勢崎.大師線【五反野】站 | ||
2022年12月建成,永久產權,符合新抗震標準。位于東京都足立區,近鄰東武伊勢崎.大師線【五反野】站。投資樓鐵骨造5層,南側、北側分別寬約20.0m、2.5m道路,共用部設有門禁、快遞柜等,總戶數14戶,1室~1室1廳(26.04㎡~37.94㎡),室內空調、浴室烘干器等生活配套設備齊全,目前滿室出租中,詳情歡迎咨詢。海外客戶可以申請日本銀行貸款購房,目前有兩種方式:1.需要在日本設立公司,以法人名義購買,貸款額度約60-70%、還款周期25-35年、貸款利率1.5%起。2.個人名義購買,海外客戶可以申請日本個人抵押貸款購房,不需要設立公司,貸款額度約50-60%,還款周期15-25年,貸款年齡65歲以內,貸款額度不能低于2000萬日元,貸款利率2.7%起。
No.366
1. 地理與基本信息:足立區地處東京都東北部,北鄰川口市,東接葛飾區,南靠荒川區,西毗北區。面積約53.25平方公里,在東京都23區中相對較大。2023年人口約70萬,居住著不同年齡段的人群,人口數量較多。這里自然環境優越,公園眾多,作為住宅區也頗受歡迎。
2. 主要區域及其特色
• 北千?。↘ita-Senju):北千住站有JR常磐線、東京地鐵千代田線、日比谷線、東武伊勢崎線(東武晴空塔線)經過,是交通樞紐。商業區內有眾多百貨公司和商店街,購物和用餐都很方便。
• 竹之塚(Takenotsuka):竹之塚站有筑波快線經過,周邊新建了許多住宅區。竹之塚中央商店街深受當地居民喜愛,能買到各種生活必需品。
• 綾瀨(Ayase):綾瀨站有千代田線和筑波快線經過,是著名的住宅街區。綾瀨川自然環境優美,是散步的絕佳去處。
• 梅島(Umejima):梅島站有日暮里-舍人線經過,方便區內出行。梅島銀座商店街是支撐當地居民生活的街道。
• 舍人(Toneri):舍人公園面積廣闊,秋季的紅葉景色很美。舍人線是區內運行的新型交通系統,提升了交通便利性。
3. 文化與歷史:足立區自江戶時代就已存在,是從農村地區逐漸發展為城市化的區域。足立區立鄉土博物館可以讓人們了解該區的歷史和文化。
4. 觀光景點:足立區是賞花勝地,特別是“足立區立花與森林交流公園”,以玫瑰和櫻花聞名。見沼代親水公園自然環境豐富,四季景色各異。千住宿能讓人感受到昔日江戶五街道之一日光街道的宿場町風情。
5. 交通出行:鐵路有JR常磐線、東京地鐵千代田線、日比谷線、東武伊勢崎線、筑波快線、日暮里-舍人線等。主要車站有北千住站、竹之塚站、綾瀨站、梅島站、舍人站等。區內公交線路眾多,出行便利。
6. 生活環境:教育資源豐富,從幼兒園到高中的教育機構齊全,東京電機大學、帝京平成大學等高校的校區也位于此地。醫療設施完備,有足立區立醫院、東京北醫療中心等。商業方面,以北千住為中心,商業設施完備,超市和商店街遍布各地。
7. 活動與節慶:足立區民節是當地居民參與的大型活動。北千住七夕祭每年舉辦,商店街會裝飾七夕飾品,熱鬧非凡。
8. 現代的足立區:足立區在尊重自然環境的同時推進城市開發,打造了宜居的環境。隨著再開發的進行,新的住宅和商業設施不斷增加,有望提升區域活力。
總結:足立區是自然與城市功能平衡的區域,公園和綠地眾多,深受有子女家庭的喜愛。北千住交通便利,生活設施齊全。這里還有歷史遺跡,對游客來說也有很多看點。如果您想了解特定區域或觀光景點的更多信息,歡迎告知。
您會在一個工作日內得到置業顧問的聯絡




