| 地址 | 日本埼玉縣蕨市 | ||
| 價格 | 人民幣:153萬 | 租金回報 | 6% |
| 建筑年代 | 2003年11月 | 建筑結構 | 鐵骨造 |
| 實際面積 | 71.95㎡ | 土地面積 | 38.70㎡ |
| 陽臺面積 | / | 車庫面積 | / |
| 總戶數 | / | 所在層 | 1-3層 |
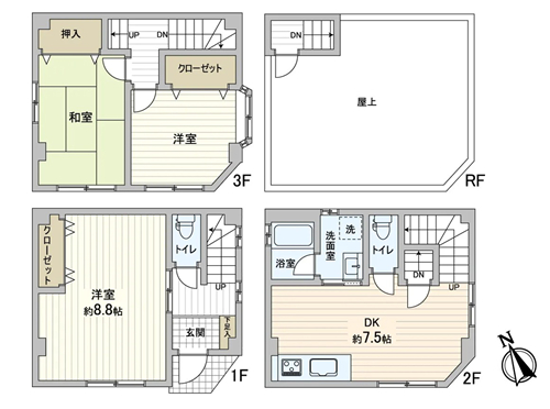
| 房型 | 3室1廳 | 朝向 | / |
| 租賃情況 | / | 租金 | 約16萬日元/月 |
| 管理費 | / | 修繕費 | / |
| 建蔽率 | 70% | 容積率 | 200% |
| 用途地域 | 第一種中高層住居專用地域 | 土地權利 | 永久產權 |
| 交通 | JR京濱東北線【西川口】站 | ||
陳 芳 営業部
2003年11月建成,永久產權,符合新抗震標準。位于埼玉縣蕨市,JR京濱東北線【西川口】站可以利用。一戶建角地,南側、東側分別約6m、4m公道,緊鄰公園,附近有蔬果店鋪,一戶建鐵骨造3層,實施了翻新,包括外部涂裝、屋頂防水涂裝、更換壁紙、地板、榻榻米、廚具等等,詳情歡迎咨詢。
No.46
埼玉 蕨市
地址:日本埼玉縣蕨市
交通:JR京濱東北線【西川口】站
您會在一個工作日內得到置業顧問的聯絡




