| 地址 | 東京都日野市 | ||
| 價格 | 人民幣:174萬 | 租金回報 | 7.83% |
| 建筑年代 | 約2,736,000日元/年 | 建筑結構 | 木造 |
| 實際面積 | 113.40㎡ | 土地面積 | 146.06㎡ |
| 陽臺面積 | / | 車庫面積 | / |
| 總戶數 | 8戶 | 所在層 | 1-2層 |
| 房型 | 1室+LOFT | 朝向 | / |
| 租賃情況 | 目前滿室出租 | 租金 | 約2,736,000日元/年 |
| 管理費 | / | 修繕費 | / |
| 建蔽率 | 40% | 容積率 | 80% |
| 用途地域 | 第一種低層住居專用地域 | 土地權利 | 永久產權 |
| 交通 | 京王線【平山城址公園】站 | ||
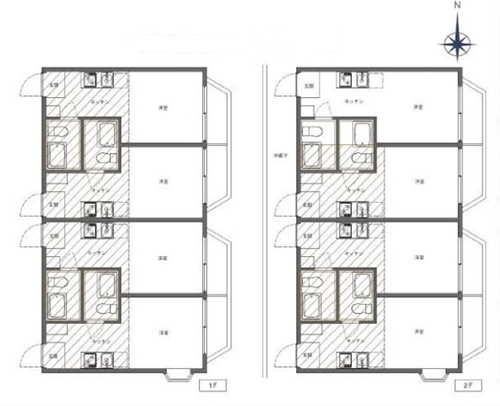
1987年8月建成,永久產權。位于東京都日野市,近鄰京王線【平山城址公園】站。公寓樓木造2層,各層56.70㎡,西側約4m公道,有自行車場,總戶數8戶,1室戶型附帶LOFT,室內廚具、空調、洗衣機放置處等生活設施齊全,目前滿室出租中,詳情歡迎咨詢。
一、地理與基本信息
1. 位置:地處東京都西部的多摩地區,北鄰立川市,東接國分寺市,南靠八王子市,西連秋留野市。
2. 面積:約55.62平方公里。
3. 人口:大約19萬人(截至2023年的估算),是一座自然與城市平衡發展的住宅城市。
4. 特點:這是一座沿著歷史街道發展起來的城市,自然環境優越。
二、主要區域及其特點
1. 日野(Hino)
• 日野站:京王線經過此地,是城市的中心地帶,商業設施和公共設施在此匯聚。
• 日野市政府(日野市役所):是城市行政的核心區域。
2. 豐田(Toyoda)
• 豐田站:京王線途經此地,周邊是一片寧靜的住宅區。
• 豐田公園:是當地居民休閑放松的好去處。
3. 高幡不動(Takahatafudō)
• 高幡不動尊:這是一座歷史悠久的寺院,吸引了眾多參拜者。
• 高幡不動站:作為京王線的站點,前往周邊觀光景點十分便捷。
三、文化與歷史
1. 日野市是沿著甲州街道發展起來的宿場町。
2. 日野市鄉土資料館:通過這個設施,可以深入了解日野市的歷史和文化。
四、觀光景點
1. 高幡不動尊:作為關東三大不動之一而聞名,在這里可以欣賞到四季不同的風景。
2. 多摩動物公園:這是一座深受家庭喜愛的動物園。
3. 百草園:自然環境優越的植物園,在這里可以欣賞到四季盛開的花卉。
五、交通
1. 鐵路:京王線是主要的交通線路。
2. 主要站點:包括日野站、豐田站、高幡不動站等。
3. 公交:市內公交線路覆蓋廣泛,尤其是從日野站出發的線路十分完善。
六、生活環境
1. 教育:從幼兒園到大學,教育機構一應俱全。特別是東京大學附屬中學和高中、日野市立第一中學等學校備受好評。
2. 醫療:日野市民醫院、東京醫科大學八王子醫療中心等醫療設施完備。
3. 商業:日野站周邊以及各個區域都有商店街和超市,日常生活所需物品應有盡有。
七、活動與節日
1. 高幡不動緣日:每月28日會舉辦特別的集市,吸引了大量民眾前來。
2. 日野市秋季節(日野市秋まつり):這是一個可以盡情體驗當地傳統與文化的節日。
八、現代的日野市
1. 日野市自然環境優越,歷史文化氛圍濃厚。
2. 交通便利,可便捷到達東京市中心,被認為是一座宜居城市。
3. 教育設施和醫療機構完備,深受有家庭的人群喜愛。
總結:日野市是一個自然與歷史相融合的區域。日野站周邊的商業設施、各處寧靜的住宅區,以及高幡不動尊等觀光景點獨具特色,生活所需設施完備。交通便利,前往東京市中心方便,在這里人們既能享受歷史和自然之美,又能體驗現代生活的便利。如果您想進一步了解特定區域或觀光景點的詳細信息,請隨時告知。
您會在一個工作日內得到置業顧問的聯絡




