| 地址 | 日本埼玉縣さいたま市 | ||
| 價格 | 人民幣:1990萬 | 租金回報 | 5.87% |
| 建筑年代 | 1992年10月 | 建筑結構 | 鋼筋混凝土造 |
| 實際面積 | 836.52㎡ | 土地面積 | 462.63㎡ |
| 陽臺面積 | / | 車庫面積 | / |
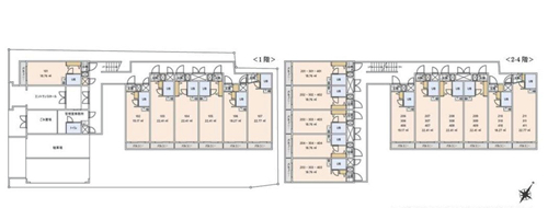
| 總戶數 | 40戶 | 所在層 | 1-4層 |
| 房型 | 1室 | 朝向 | / |
| 租賃情況 | 目前出租中 | 租金 | 約23,376,000日元/年 |
| 管理費 | / | 修繕費 | / |
| 建蔽率 | 60% | 容積率 | 200% |
| 用途地域 | 第一種住居地域 | 土地權利 | 永久產權 |
| 交通 | JR京濱東北線【北浦和】站 | ||
柏 青 営業部
1992年10月建成,永久產權,符合新抗震標準。位于日本埼玉縣さいたま市,JR京濱東北線【北浦和】站可以利用。公寓樓鋼筋混凝土造4層,西側寬約5.45m公道,附近除了超市之外,在北浦和車站前還形成了商業街,購物吃飯便利,另外,周邊還有市立圖書館、近代美術館所在的北浦和公園等文化設施。公寓樓2025年3月完成大規模修繕,設置門禁、總戶數40戶,住戶為18.27㎡~22.77㎡的單間戶型,目前出租中,詳情歡迎咨詢。海外客戶可以申請日本銀行貸款購房,目前有兩種方式:1.需要在日本設立公司,以法人名義購買,貸款額度約60-70%、還款周期25-35年、貸款利率1.5%起。2.個人名義購買,海外客戶可以申請日本個人抵押貸款購房,不需要設立公司,貸款額度約50-60%,還款周期15-25年,貸款年齡65歲以內,貸款額度不能低于2000萬日元,貸款利率2.7%起。
埼玉 さいたま市浦和區
地址:日本埼玉縣さいたま市
交通:JR京濱東北線【北浦和】站
您會在一個工作日內得到置業顧問的聯絡




