| 地址 | 東京都杉並區 | ||
| 價格 | 人民幣:399萬 | 租金回報 | / |
| 建筑年代 | 預計2025年4月中旬竣工 | 建筑結構 | 木造 |
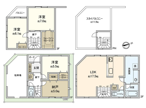
| 實際面積 | 121.09㎡ | 土地面積 | 56.50㎡(實測) |
| 陽臺面積 | / | 車庫面積 | 有車位 |
| 總戶數 | / | 所在層 | 1-3層 |
| 房型 | 3SLDK+P | 朝向 | / |
| 租賃情況 | / | 租金 | / |
| 管理費 | / | 修繕費 | / |
| 建蔽率 | 80% | 容積率 | 200% |
| 用途地域 | 近鄰商業地域 | 土地權利 | 永久產權 |
| 交通 | ①西武新宿線【下井草】站 ②西武新宿線【井荻】站 ③JR中央線、東京メトロ丸ノ內線【荻漥】站轉乘公交 | ||
預計2025年4月中旬竣工,永久產權,符合新抗震標準。位于東京都杉並區,西武新宿線【下井草】站、【井荻】站可以利用,另外也可利用JR中央線、東京メトロ丸ノ內線【荻漥】站轉乘公交,乘車可直達新宿。一戶建南側寬約10.9m公道,西側寬約3.7m私道,周邊有超市、商店街、學校、公園等,生活便利。一戶建木造3層,有車位,屋頂有露臺,能眺望新宿夜景,客餐廳部分3面采光,全居室有收納,2個衛生間,詳情歡迎咨詢。海外客戶可以申請日本銀行貸款購房,目前有兩種方式:1.需要在日本設立公司,以法人名義購買,貸款額度約60-70%、還款周期25-35年、貸款利率1.5%起。2.個人名義購買,海外客戶可以申請日本個人抵押貸款購房,不需要設立公司,貸款額度約50-60%,還款周期15-25年,貸款年齡65歲以內,貸款額度不能低于2000萬日元,貸款利率2.7%起。
1. 地理與基本信息:杉并區位于東京都西北部,北鄰練馬區,東接中野區,南靠澀谷區,西毗三鷹市。面積約34.06平方公里,2023年人口約57萬,作為寧靜的住宅區深受歡迎。這里落語、電影等文化活動豐富,被譽為“彌漫著文化氣息的區域”。
2. 主要區域及其特色
• 高圓寺(Kōenji):高圓寺站有JR中央線和總武線經過,商業區域繁華熱鬧。高圓寺阿波舞是每年夏天舉辦的日本最大規模的盆踴活動。這里的個性商店街分布著古著店、咖啡館、雜貨店等,能讓人感受到下町風情。
• 阿佐谷(Asagaya):阿佐谷站有中央線和東京地鐵丸之內線通過。阿佐谷動漫街匯聚了眾多動漫相關店鋪。阿佐谷珠算紀念館可讓人了解算盤的歷史。
• 荻洼(Ogikubo):荻洼站是中央線和丸之內線的站點,商業設施完備。荻洼銀座是深受當地居民喜愛的商店街。桃園川保留了自然景觀,是散步的絕佳去處。
• 和田(Wada):善福寺公園面積廣闊,內有鳥類園和美術館,可盡情享受自然之美。
• 永福町(Eifukuchō):永福町站有京王井之頭線經過,是寧靜的住宅區。
3. 文化與歷史:杉并區在江戶時代曾是農村地區,明治之后逐漸走向城市化。杉并區立歷史民俗資料館可以讓人們了解該區的歷史和文化。
4. 觀光景點:丸山商店街是位于高圓寺一角的復古商店街。善福寺川綠地是自然豐富的散步路線。杉并區立美術館展示當地的藝術作品。
5. 交通出行:鐵路有JR中央線、總武線、東京地鐵丸之內線、京王井之頭線等。主要車站有高圓寺站、阿佐谷站、荻洼站、永福町站等。區內出行乘坐巴士很方便,還有社區巴士“杉並區コミュニティバスすぎ丸”運行。
6. 生活環境:教育資源豐富,從幼兒園到高中的教育機構齊全,早稻田大學部分校區也在此。醫療設施完備,有國際醫療福祉大學三田醫院、杉并區立綜合醫院等。商業方面,各區域都有商店街和大型商業設施,生活便利性高。
7. 活動與節慶:高圓寺阿波舞是日本最大規模的盆踴活動,吸引了眾多國內外游客。杉并區民節是當地居民相聚的大型活動。
8. 現代的杉并區:杉并區作為住宅區備受青睞,尤其受到有子女家庭的支持。文化活動豐富,落語、電影、音樂等活動頻繁舉辦。
總結:杉并區是自然與城市功能和諧平衡的區域,充滿文化氣息。高圓寺和阿佐谷的下町風情、荻洼的寧靜氛圍等,展現出多樣的面貌,無論是居住還是游覽都極具吸引力。如果您想了解特定區域或觀光景點的更多信息,歡迎告知。
您會在一個工作日內得到置業顧問的聯絡




