| 地址 | 東京都北區 | ||
| 價格 | 人民幣:396萬 | 租金回報 | / |
| 建筑年代 | 2025年5月 | 建筑結構 | 木造 |
| 實際面積 | 106.20㎡ | 土地面積 | 55.56㎡ |
| 陽臺面積 | / | 車庫面積 | 有車位 |
| 總戶數 | / | 所在層 | 1-3層 |
| 房型 | 3室1廳+P | 朝向 | / |
| 租賃情況 | / | 租金 | / |
| 管理費 | / | 修繕費 | / |
| 建蔽率 | 80%(60%) | 容積率 | 200% |
| 用途地域 | 準工業地域 | 土地權利 | 永久產權 |
| 交通 | ①東京メトロ南北線【志茂】站 ②JR各線【赤羽】站 | ||
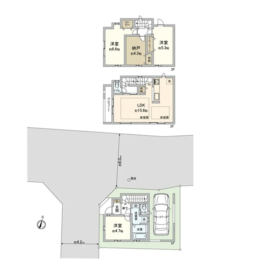
2025年5月建成,永久產權,符合新抗震標準。位于東京都北區,東京メトロ南北線【志茂】站,JR各線【赤羽】站可以利用,通往池袋、新宿等交通便捷。一戶建地處角地,北側約6.0m公道,西側約4.0m私道,周邊有綜合超市等日常購物設施外,保育園、幼稚園、中小學校、公園等完善,對于育兒家庭很便利。一戶建木造3層,3室1廳,有車庫,客餐廳設有地暖,帶洗碗機的系統廚具,收納充實,2衛生間,浴室帶浴室烘干器等生活配套設備齊全,詳情歡迎咨詢。海外客戶可以申請日本銀行貸款購房,目前有兩種方式:1.需要在日本設立公司,以法人名義購買,貸款額度約60-70%、還款周期25-35年、貸款利率1.5%起。2.個人名義購買,海外客戶可以申請日本個人抵押貸款購房,不需要設立公司,貸款額度約50-60%,還款周期15-25年,貸款年齡65歲以內,貸款額度不能低于2000萬日元,貸款利率2.7%起。
1. 地理與基本信息:北區地處東京都北部,北鄰板橋區,東接足立區,南靠荒川區,西毗豐島區。面積約20.61平方公里,2023年人口約35萬,區內多為寧靜的住宅區。這里綠樹成蔭的公園和歷史遺跡眾多,深受有子女家庭的喜愛。
2. 主要區域及其特色
• 赤羽(Akabane):赤羽站有JR京濱東北線、埼京線、東京地鐵有樂町線、都營三田線經過,是交通樞紐。赤羽站前商店街深受當地居民喜愛,餐飲店豐富多樣。
• 王子(ōji):王子站有JR京濱東北線、東京地鐵南北線經過。飛鳥山公園是日本首個公共公園,也是著名的賞櫻勝地。紙之博物館能讓人們了解日本的紙文化。
• 十條(Jūjō):十條站有JR京濱東北線、埼京線經過,周邊是寧靜的住宅區。十條銀座是支撐當地居民生活的商店街。
• 田端(Tabata):田端站有JR山手線、京濱東北線經過,是受學生和家庭歡迎的區域。田端文士村紀念館是為紀念昭和時期文豪們曾居住此地而設立的場館。
• 西ケ原(Nishi-Keppu):西ケ原一里冢能讓人感受到江戶時代的歷史痕跡。
3. 文化與歷史:北區自江戶時代就已存在,尤其是王子和赤羽曾作為宿場町發展起來。北區飛鳥山博物館可以讓人們了解該區的歷史和文化。
4. 觀光景點:飛鳥山公園是賞櫻勝地,春季時眾多游客前來賞櫻。北區杜鵑之岡公園以杜鵑花聞名,春季是觀賞的最佳時節。大觀音寺以27米高的大觀音像為標志。
5. 交通出行:鐵路有JR山手線、京濱東北線、埼京線、東京地鐵南北線、有樂町線、都營三田線等。主要車站有赤羽站、王子站、十條站、田端站等。區內有方便出行的公交線路。
6. 生活環境:教育資源豐富,從幼兒園到高中的教育機構齊全,東京學藝大學的校區也位于此地。醫療設施完備,有北區立赤羽醫院、東京北醫療中心等。商業方面,各區域都有商店街和超市,生活便利性高。
7. 活動與節慶:飛鳥山賞櫻是春季的標志性活動,熱鬧非凡。赤羽馬鹿祭是當地的節日,充滿歡樂的氛圍。
8. 現代的北區:北區自然環境優越,公園和綠地眾多,擁有適合養育子女的環境。社區凝聚力強,當地的活動和商店街充滿活力。
總結:北區是歷史與自然和諧相融的寧靜住宅區,交通便利,生活環境完善。尤其是赤羽和王子,既是交通樞紐,又保留著當地的特色風情。對游客來說,這里看點豐富,無論是居住還是游覽,北區都極具吸引力。如果您想了解特定區域或觀光景點的更多信息,歡迎告知。
您會在一個工作日內得到置業顧問的聯絡




