| 地址 | 日本鐮倉市雪ノ下3 | ||
| 價格 | 人民幣:793萬 | 租金回報 | |
| 建筑年代 | 2007年7月 | 建筑結構 | 木造 |
| 實際面積 | 138.34㎡ | 土地面積 | 226.11㎡ |
| 陽臺面積 | 車庫面積 | ||
| 總戶數 | 所在層 | 1-2 | |
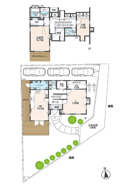
| 房型 | 2室1廳+書房+閣樓+納戶+駐車場+自行車場 | 朝向 | |
| 租賃情況 | 居住中 | 租金 | |
| 管理費 | 修繕費 | ||
| 建蔽率 | 60% | 容積率 | 150% |
| 用途地域 | 第1種中高層住居專用地域 | 土地權利 | 永久產權 |
| 交通 | ◇JR橫須賀線【鐮倉】站徒步17分鐘 | ||
林 武振 営業部
2007年7月建成的戶建,永久產權,符合新抗震標準。位于日本有著傳統神社佛閣及歷史悠久建筑物等觀光名邸的鐮倉市。物件距【鐮倉】站徒步17分鐘,直通【橫濱】站26分鐘,【東京】站56分鐘,通往羽田機場約1小時左右,成田機場約2小時左右,交通便利。物件東南角地,有駐車場(3臺),清新自然的田園風,高大的樹木,矮小的花草都給生活增添了活力,甲板陽臺舒適溫馨的娛樂休閑場所,全室配備空調及暖爐,現代化的廚具,可步入式衣帽間,衛浴分離,衛生間2所,生活設備完善。另外,物件可以申請日本銀行貸款,首付4-5成,貸款利率2.9%,貸款周期25年。撬動杠桿不但可以增加收益,還降低了投資風險!歡迎咨詢。
其他地區 其他
4 地址:日本鐮倉市雪ノ下3
交通:◇JR橫須賀線【鐮倉】站徒步17分鐘
您會在一個工作日內得到置業顧問的聯絡




