| 地址 | 東京都板橋區高島平5 | ||
| 價格 | 人民幣:999萬 | 租金回報 | |
| 建筑年代 | 2013年1月 | 建筑結構 | 輕量鐵骨造 |
| 實際面積 | 239.48㎡ | 土地面積 | 224.02㎡ |
| 陽臺面積 | 車庫面積 | ||
| 總戶數 | 所在層 | 1-3 | |
| 房型 | 5室1廳+儲藏室+WIC | 朝向 | |
| 租賃情況 | 居住中 | 租金 | |
| 管理費 | 修繕費 | ||
| 建蔽率 | 50% | 容積率 | 100% |
| 用途地域 | 第1種低層住居專用地域 | 土地權利 | 永久產權 |
| 交通 | ◇都營三田線【西高島平】站徒步6分鐘 | ||
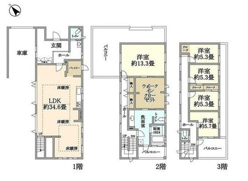
2013年1月建成的獨棟別墅,永久產權,符合新抗震標準。位于東京都板橋區,距最近車站【西高島平】站徒步6分鐘,交通便利。以白色為基調的明亮外觀,有車庫,游泳池,輕量鐵骨造3層, 3處陽臺,其中2層陽臺可享受BBQ等各種用途,3處衛生間,約34.6帖開放感十足的客餐廳,地暖,厚重感的暖爐,1層天花板設置揚聲器,臥室,衛生間,盥洗室均使用了具有除臭效果的特殊墻紙,并且相鄰,使用方便,浴室有電視,大型洗面臺,收納豐富,可步入式衣帽間內的構造可收納300件以上的衣物,另外,物件可以申請日本銀行貸款,首付4-5成,貸款利率2.9%,貸款周期25年。撬動杠桿不但可以增加收益,還降低了投資風險!歡迎咨詢。
1. 地理與基本信息:板橋區位于東京都北部,北鄰埼玉縣和光市,東接荒川區,南靠豐島區,西毗練馬區。面積約32.22平方公里,2023年人口約57萬,在東京都內屬于較大的區,人口密度較高。區內住宅區廣泛,公園和綠地眾多,深受有子女家庭的喜愛,商業設施也十分完備。
2. 主要區域及其特色
• 板橋站周邊:板橋區役所是行政中心,提供各類市民服務。有多條深受當地居民喜愛的商店街,方便日常購物。
• 高島平(Takashimadaira):高島平團地是日本最大規模的公營住宅區,配套有公園和購物設施。高島平中央公園面積廣闊,運動設施和兒童游樂場一應俱全。
• 成增(Narimasu):成增站有東武東上線經過,前往板橋區北部交通便利。成增學習館是用于學習和文化活動的場所。
• 志村(Shimura):志村坂上是歷史悠久的街景與新商業設施相融合的區域。志村三丁目公園是附近居民的休憩之地。
• 赤冢(Akatsuka):赤冢公園寬敞開闊,四季皆可欣賞不同的自然美景。ARIO是大型購物中心,日常生活所需物品一應俱全。
3. 文化與歷史:板橋區歷史悠久,尤其在江戶時代作為宿場町繁榮一時。板橋區立美術館展示當地藝術家的作品和地域文化。
4. 觀光景點:板橋區作為觀光地的知名度較低,但也有一些值得一游的景點。大谷田公園是賞櫻勝地,春季時賞櫻游客眾多。舊古河庭園是美麗的日式庭園,可感受歷史韻味。ITOPIA是經常舉辦社區活動和各類活動的綜合設施。
5. 交通出行:鐵路方面有東武東上線、東京地鐵有樂町線、副都心線、都營三田線等經過。主要車站有板橋站、成增站、高島平站、志村三丁目站等。公交線路覆蓋全區,尤其是前往住宅區和團地十分便利。
6. 生活環境:教育資源豐富,從幼兒園到高中的教育設施眾多,還有東京成德大學、日本大學醫學部等高校。醫療設施完備,有板橋中央綜合醫院、東京警察醫院等。商業方面,超市和商店街分布廣泛,日常生活便利性高。
7. 活動與節慶:板橋區民節是當地居民廣泛參與的大型活動,有音樂、舞蹈和文藝表演。春季櫻花節在大谷田公園等地舉行,居民們歡聚一堂。
8. 現代的板橋區:板橋區以相對寧靜、宜居著稱。近年來,再開發項目不斷推進,新的商業設施和公共設施逐漸增多。自然環境優越,公園和綠地豐富,是適合養育子女的區域。
總結:板橋區是東京都內充滿生活氣息的區域,歷史與現代交融的街景隨處可見。交通便利,寧靜的住宅區和商業設施布局平衡。雖作為觀光地知名度不高,但對當地居民而言,是居住舒適度很高的地方。如果您想了解特定區域或觀光景點的更多信息,歡迎告知。
您會在一個工作日內得到置業顧問的聯絡




