詳細情報
價格:4億8,500萬日元
約合:2,282萬人民幣
位置:東京都中央區勝どき4丁目
土地權利:永久產權
現狀:空室
建筑年代:2023年8月
總戶數:1,665戸
構造:鋼筋混凝土造地下3層付地上58層
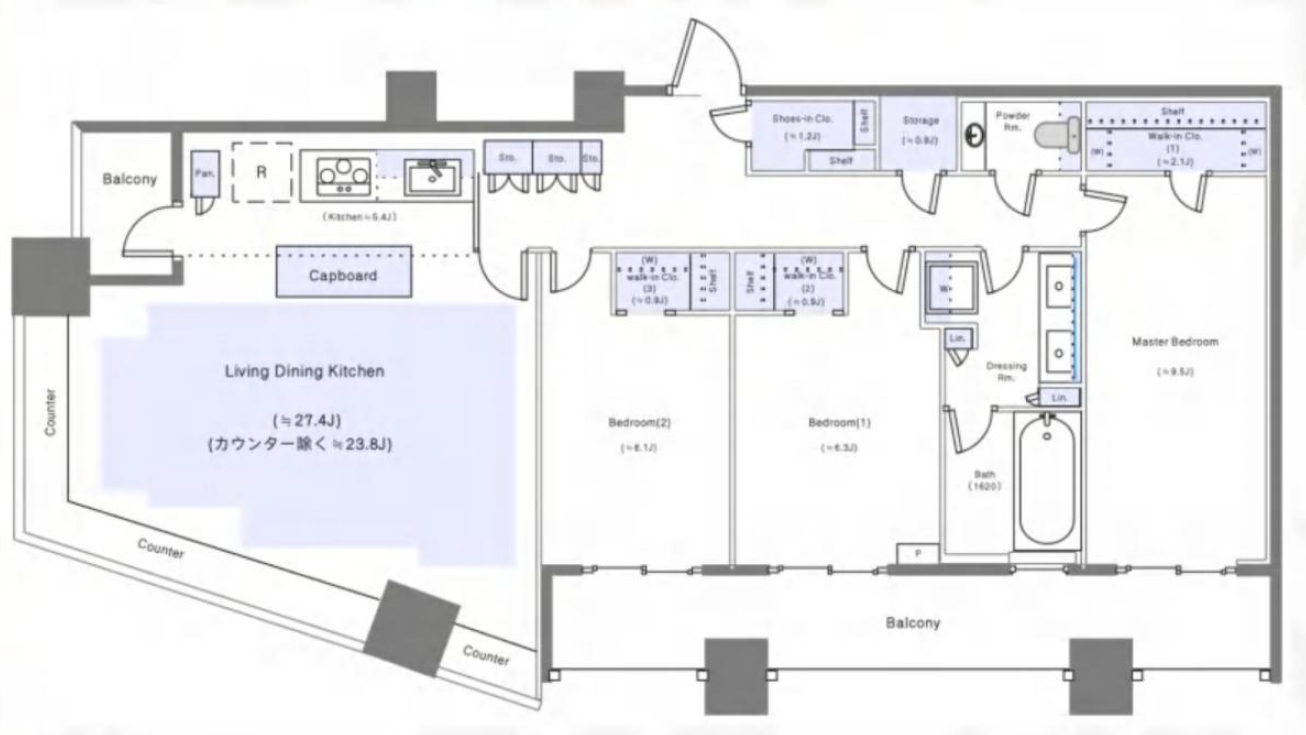
房產戶型:3室1廳
使用面積:117.5㎡
陽臺面積:20.8㎡
管理費:40,895日元/月
修繕費:13,865日元/月
交通:①都營大江戶線【勝どき】站
②都營大江戶線【汐留】站
③東京地下鐵有樂町線【銀座一丁目】站
④東京地下鐵有樂町線、山手線【有楽町】站
⑤山手線【東京】站
⑥都營大江戶線、日比谷線【六本木】站
推薦理由
“Park Tower勝哄南”是一棟于2023年8月竣工的58層塔樓公寓樓,距離都營大江戶線勝哄站步行僅需2分鐘。雖然這是一棟共有1,665套房間的大型公寓,但配備了自動鎖、送貨柜等安全設施,可以支撐舒適的城市生活。
公寓樓還擁有一個可以與寵物一起生活的環境,您可以在20層及以上欣賞城市景觀,俯瞰市中心。此外還有客房、24小時垃圾處理等設施,支持舒適的公共生活。
與此同時,這里還有良好的教育環境,對于有孩子的家庭來說是一個安全的地方。“Park Tower Kachidoki South”結合了前往市中心的便捷交通、豐富的設施和良好的周邊環境,使其成為那些尋求容納多種生活方式的城市生活的人的合適選擇。
地理位置
勝哄站位于東京都中央區的海濱地區,是都營大江戶線上安靜便利的住宅區,位于上班或上學的便利位置,可輕松前往東京站和新宿站等東京市中心。車站周邊有很多購物和公共設施,是從年輕人到老年人的廣泛人群的舒適居住地。
車站前有超市、餐館、咖啡館、藥妝店等。可以在回家的路上完成必要的購物和吃飯。同時這里教育設施豐富且優質、醫療和公共設施完備,是安靜且可靠的居住環境。
近年來,由于塔樓公寓的建成,人口增加,城市正在發生重大變化。它靠近歷史悠久的筑島地區、前筑地市場和銀座,是體驗東京眾多魅力的便捷場所。
周邊環境
勝哄站周邊地區位于隅田川河口,是一座四面環水的城市。隅田川沿岸有一條散步道,日夜經常可以看到步行者和跑步者。附近的水域是海水和淡水混合的咸水,經常可以看到人們在捕撈蝦虎魚和其他物種。
站前有一座月島第二兒童公園,是有游樂設施的大型兒童公園。夏天還有一個區域可以讓小朋友在炎熱夏天玩水消暑。
關于周邊的公共設施:從勝哄站到中央區役所的距離較遠,建議使用距離車站步行 8 分鐘的月島特別辦事處,當地圖書館與分館位于同一棟大樓內。
勝哄站周邊的安全 勝哄站周邊屬于警視廳月島警察署管轄。月島警察局距離勝哄站僅有短短的12分鐘步行路程,月島警察局的勝哄橋派出所位于勝哄站的西北側,負責監視車站周邊的公共安全。在勝哄站路口,交通繁忙時,警察經常控制交通以確保安全。

中央區:中央區位于東京23區的正中央位置。中央區不僅地理位置處于東京的中心地,更是日本經濟、信息、商業等的中心。著名的日本銀行、東京證券交易所等日本經濟核心都位于中央區。包括銀座、大型布莊與百貨公司總社聚集的日本橋、及以魚貨市場聞名的筑地皆位于本區范圍之內。
本區商業強烈,高樓林立,住宅方面以高層公寓與團地等集合住宅為主,獨戶低層住宅或低層分租公寓較為少見。區內道路呈現棋盤狀,與他區相比較為整齊。隨著勝どき、晴海地區地區的住宅開發建設推進,近年中央區吸引了一批30-40歲的人口入住。由于該區位于東京中心位置,交通十分便捷,到神奈川,埼玉和千葉等地區的交通路線四通八達。
中央區是全日本地價最高的地區。很多投資者會將重點放在二手翻新公寓或是二手小戶型公寓,這一類物件所需投資金額相對較低。若有一定資金實力可以考慮一次性投資整棟公寓以獲得規模效益。
圖片總覽
公寓外觀

公寓露臺
.png)
公寓聚會室
.png)
公寓戶型
