房源信息
價格:39,800萬日元(2025年1月31日前有效)
約合:1,154萬人民幣(2025年1月31日前有效)
位置:東京都港區東新橋1-10-1
土地權利:永久產權
現狀:空室
建筑年代:2002年9月
總戶數:1000戸
構造:鋼筋混凝土造地上47層附地下2層
樓層:28層
房產戶型:3室1廳
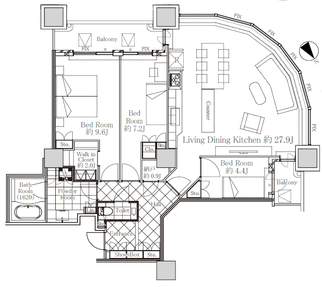
使用面積:109.39m²
陽臺面積:9.43㎡
管理費:40,500日元/月
修繕費:38,390日元/月
交通:①都營大江戶線【汐留】站
②山手線【濱松町】站
③山手線【新橋】站
推薦理由
“Tokyo Twin Parks”是一棟地上47層、地下2層的塔樓公寓,位于距離山手線濱松町站交通便利的位置。雖然這是一座共有1000套物件的大型公寓,但配備了自動鎖、送貨柜等安全設施,可以支持您舒適的城市生活。
公寓樓由左翼、右翼兩棟建筑組成,它位于黃金地段,最吸引人的特點是其獨特的地理位置,南邊和東邊可以看到濱離宮和東京灣的全景,西邊可以看到東京塔,北邊可以看到銀座和丸之內的夜景。雖然位于港區,但它是汐留地區唯一的豪華塔樓公寓,毗鄰東京中部的中央區。
穿過一片綠樹成蔭的公共開放空間,有一個優雅的入口迎接住戶。公寓大堂是一個堪稱豪華的酒店式空間,讓您的日常生活更加奢華。公寓樓內地下室設有儲藏室和停車場,一樓設有診所和休息室,二樓以上為住宅單元。安全措施包括與對講機相連的自動鎖以及每個單元中安裝的電視監視器,還安裝了送貨儲物柜。您可以在客房、景觀休息室、健身設施等共用設施中度過舒適的時光。
公寓的室內設計由來自世界各地的設計師打造,絲毫不泄露建筑的年代感,奢華的設計讓所有看到它的人都感到驚訝,其中最令人印象深刻的是開放式入口和高高的天花板。
Tokyo Twin Parks 的每個單位均配備齊全的設施,如地暖和天花板盒式空調。另一個很棒的功能是公寓有著24小時垃圾處理服務。對于想要住在市中心的人們來說,Tokyo Twin Parks將滿足多種需求,將是一個集舒適的居住環境和便利性于一體的選擇。
■附近有JR 京濱東北線、根岸線濱松町站,乘車可直達東京站、品川站、川崎站
■提供清潔接待、快遞服務等各種前臺服務
■樓內共有623個停車位
■副入口設有針對寵物的洗腳區,方便寵物家庭
位置信息
在東新橋居住的主要是年輕的單身人士、年輕夫婦、有孩子的家庭。這是一個安靜的住宅區,有許多獨棟住宅和低層公寓等公寓樓,人口不是很密集,家庭平均收入較高。不過,雖然這里是安靜的住宅區,但通往市中心和市中心的交通便利,而且周邊的商業設施和公園星羅棋布,生活便利。值得一提的是,這里居留病童保育設施很近,適合父母雙方撫養孩子的家庭,因為在緊急情況下可以安心。東新橋的周邊有方便日常購物的超市和自然豐富的公園,營造了便
利的日常生活與休閑空間并存的環境。另一個吸引力是醫院距離公寓僅幾步之遙,讓您可以安心地管理自己的健康。在教育環境方面,東新橋對于有孩子的家庭來說也是一個安全的地方。

港區:港區位于東京23區中央偏南部。該區是擁有最多企業總部的地區,是日本企業的中心。虎之門、新橋、芝為重要的辦公商區,經濟活動十分活躍。青山、赤坂等商業地區;六本木等娛樂中鎮;麻布、白金臺等高級住宅區;汐留、臺場等大規模開發區,是該區展現各種不同風貌的代表。東宮御所、芝公園、白金臺的自然教育園等是豐富的自然環境。駐日大使館與外資企業的大量進駐,讓港區的外國人居住者比例非常高。
受到東京2020年奧運會的影響,進入港區的企業和觀光者數量會逐漸增加,商業地域周邊的地價預計會出現較大增長。港區坐擁慶應大學、明治學院、東海大學等知名學府,因此針對大學生租賃的房產投資也可為投資帶來穩定收益。
交通方面,可以同時利用復數條線路的品川站、新橋站等車站不僅通往東京都心十分便利,通往橫濱,川崎和神奈川方向也是十分快捷,亦可以利用高人氣的新干線。
對于房產投資,港區地價較東京其他區高,但從保值率角度,港區地價出現下跌的風險遠小于其他地區。
圖片總覽

公寓外景

公寓戶型
.jpg)
公寓位置