詳細情報
價格:1億480萬日元(2024年12月17日前有效)
約合:732萬人民幣(2024年12月17日前有效)
位置:東京都港區芝浦4-10-1
土地權利:永久產權
現狀:空室
建筑年代:2007年10月
總戶數:869戸
構造:鋼筋混凝土造 地上47層
樓層:27層
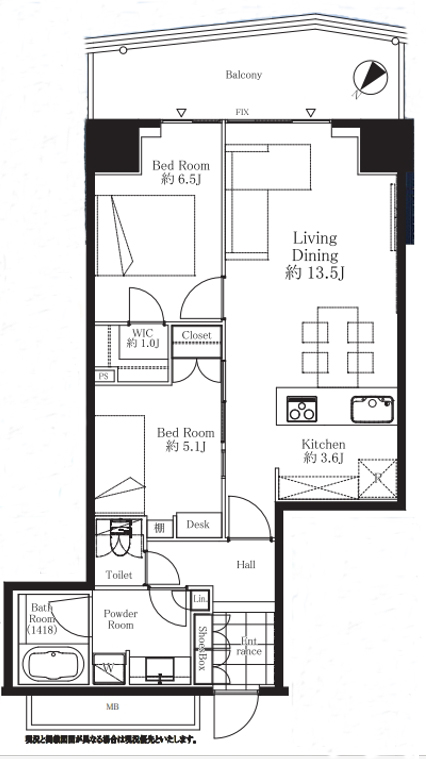
房產戶型:2室1廳
使用面積:64.65m²
陽臺面積:11.93㎡
管理費:17,300日元/月
修繕費:10,990日元/月
交通:①JR山手線、京濱東北線【田町】站
②都營淺草線、三田線【三田】站
推薦理由
Capital Mark Tower是一棟47層的高層公寓樓,于2007年10月竣工。這是一個共有869個單位的大型社區,擁有從1LDK到4LDK多種戶型。公寓的外觀呈透明的三角形,即使靠近入口也能營造出奢華的空間。Capital Mark Tower采用隔震結構,每間單位均為雙層天花板,讓您安心居住。雙自動鎖也考慮到了安全性,并為住戶提供24小時有人值守的管理和禮賓服務。除了空中酒廊和客房外,健身房、兒童房等共享設施也將豐富您的日常生活。公寓電器設備齊全,廚房配有垃圾處理器。同時公寓也允許攜帶寵物,但有飼養寵物的規定。
■公寓樓內設有2個不同品味的休息室,包括位于24樓和25樓的可欣賞風景的Capital Sky Lounge,以及位于2樓的可欣賞瀑布花園的Garden Lounge
■AV等公共設施,劇院、兒童房、派對室等設施齊全,使用方便
■提供禮賓服務,滿足多種需求。
■節能、低成本、安全性高的全電力系統
■隔震裝置吸收地震能量
地理位置
高樓林立的田町,給人一種強烈的商業區印象,但實際上它是一個學生城,周圍散布著許多校園。有“慶應義塾大學三田校區”、“中央大學市谷田町校區”、學生們快樂的老式商店街“慶應義塾中通商店街”、JR沿線的“本芝公園”、東口等,同時這里還有很多可以放松的綠地,氣氛有些悠閑。 此外,品川站距離JR山手線和京濱東北線運行的田町站只有兩站路程,換乘新干線也很方便。從都營淺草線三田站乘坐一趟電車即可到達羽田機場,地理位置優越。而且這里還是NEC、森永牛奶公司、森永牛奶、三菱汽車和萬代南夢宮控股等眾多企業總部所在地的商業區,目前,田町的重建工作主要以車站周邊為中心進行,重建后的動向也備受關注。
田町不僅是一個可以享受購物樂趣的地方,也是個日常購物的場所。「mbs Tamachi」有一家名為「Life」的超市,日常購物很方便,同時這里還有京王中通商店街,約有70家咖啡館、花店、餐廳等,可以根據當天的心情和目的進行購物。
芝浦方向的東口比西口重新開發得早,因此街道景觀也很精致。橫穿市區的芝浦運河沿岸的公園和海濱長廊非常適合散步,風景有時被稱為“東京威尼斯”。公寓沿著運河排列,使其成為輕松居住的完美區域。
目前,車站前地區正在重新開發,商業設施齊全,給人的感覺這里是一個非常便利的區域,但如果從田町站西口出去,就可以看到東京的象征“芝公園”和“東京塔”,在芝浦方向的東口還可以看到優雅的海濱風景。與此同時,盡管這里的學生很多,但很多人還是會享受這里的平靜的城市生活氛圍。

港區:港區位于東京23區中央偏南部。該區是擁有最多企業總部的地區,是日本企業的中心。虎之門、新橋、芝為重要的辦公商區,經濟活動十分活躍。青山、赤坂等商業地區;六本木等娛樂中鎮;麻布、白金臺等高級住宅區;汐留、臺場等大規模開發區,是該區展現各種不同風貌的代表。東宮御所、芝公園、白金臺的自然教育園等是豐富的自然環境。駐日大使館與外資企業的大量進駐,讓港區的外國人居住者比例非常高。
受到東京2020年奧運會的影響,進入港區的企業和觀光者數量會逐漸增加,商業地域周邊的地價預計會出現較大增長。港區坐擁慶應大學、明治學院、東海大學等知名學府,因此針對大學生租賃的房產投資也可為投資帶來穩定收益。
交通方面,可以同時利用復數條線路的品川站、新橋站等車站不僅通往東京都心十分便利,通往橫濱,川崎和神奈川方向也是十分快捷,亦可以利用高人氣的新干線。
對于房產投資,港區地價較東京其他區高,但從保值率角度,港區地價出現下跌的風險遠小于其他地區。
圖片總覽
公寓外觀

公寓外景

公寓戶型
.png)
公寓位置
.png)